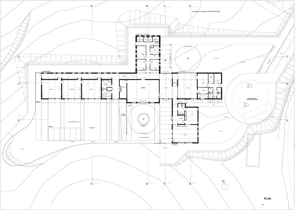
French firm Amelia Tavella Architectes completed a primary school in the remote village of Sainte-Marie-Sicche, in the island of Corsica. Unlike trending architectures for kids, this project advocates for sobriety in materials and colours, opening up to the rich landscape. The school sits on a vast land, a former equestrian area punctuated by two century-old oak trees that mark the entrance, the window of the caffeteria and the playground.
View gallery
AMELIA TAVELLA - Ecole A Stregga
AMELIA TAVELLA - Ecole A Stregga
AMELIA TAVELLA - Ecole A Stregga
AMELIA TAVELLA - Ecole A Stregga
AMELIA TAVELLA - Ecole A Stregga
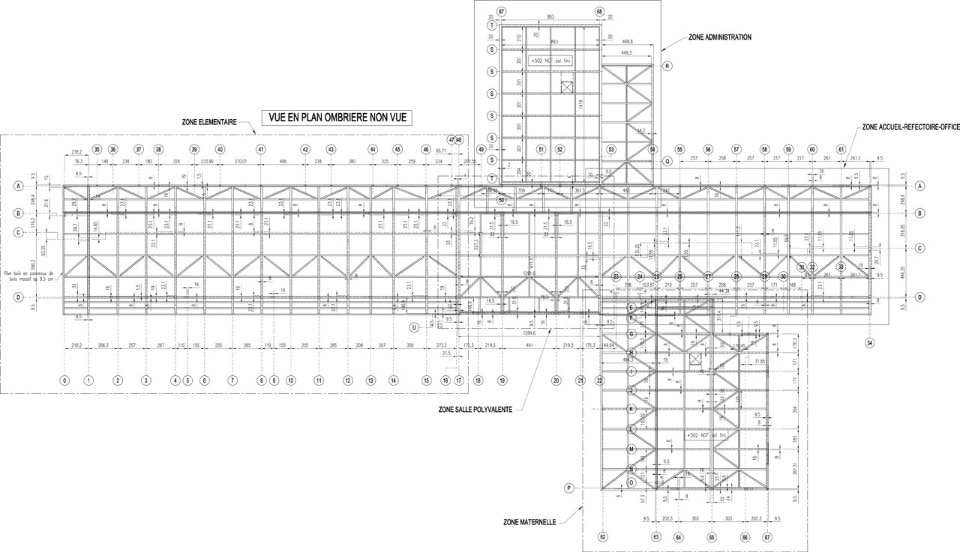
SMS PRO 181114 JU OK NET
SteMarieS FINAL v2010 v2012
SteMarieS def exports
SteMarieS def exports
SteMarieS def exports
Sainte marie de siché LOT 2 Plan PRO EXE CHOB01 à 010 17-11-2014
Sainte marie de siché LOT 2 Plan PRO EXE CHOB01 à 010 17-11-2014
Sainte marie de siché LOT 2 Plan PRO EXE CHOB01 à 010 17-11-2014
The goal is to integrate the building harmoniously with the local vegetation: wood is omnipresent in this context and offers the building the opportunity to live in real symbiosis with nature, while offering comfort. Pine cleats, placed vertically, create a natural mesh along the facade, which alternates solids and gaps, proposing shadow and light contrasts. Punctually, this envelope is interrupted, leaving room for the granite that comes from old Corsican buildings: the stones have been resized on site before being assembled. The volume faces the village, becoming a reminder of the traditional architecture. The unitary over-roof emphasizes the skyline of the surroundings and acts as an identity element of the building, while allowing a harmonious bioclimatic management of the structure.
- Project:
- Groupe Scolaire à Strega
- Program:
- school
- Location:
- Strega, Santa Maria Siché, Corse, France
- Architects:
- Amelia Tavella Architectes
- Electricity, ventilation, HQE engineering:
- Garcia Ingénierie
- Wooden structure:
- T. Hulin
- Cost estimator:
- Beaumeco
- Controller:
- Socotec
- Acoustic engineering:
- Acoustique & Conseil
- Area:
- 1,200 sqm
- Completion:
- 2018
