Jorge Vidal designed an office space in the Ciutat de la Justícia, Barcelona, commissioned by the board of prosecutors of Barcelona. Natural materials – such as wood –are combined with a pastel palette mitigating the resolute scheme that defines the plan.
View gallery
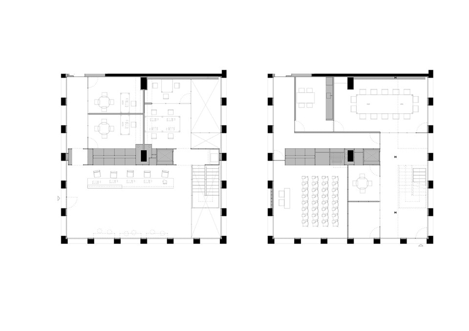
The access to the headquarters is a wide and bright hall at the mezzanine floor. The space develops in two levels, related to one another by a double-height that correspond to the circulation zone.
The squared floors are both symmetrically divided in two areas by a central wooden piece of furniture, as a backbone managing the distribution of public and work spaces.
- Project:
- Attorney's headquarters
- Location:
- Barcelona, Spain
- Program:
- Office
- Architects:
- Jorge Vidal Studio
- Structures:
- Cabezas y Góngora
- Facilities and Sustainability:
- Jaume Pastor
- Technical support:
- Mario Barredo
- Area:
- 410 sqm
- Completion:
- 2017
