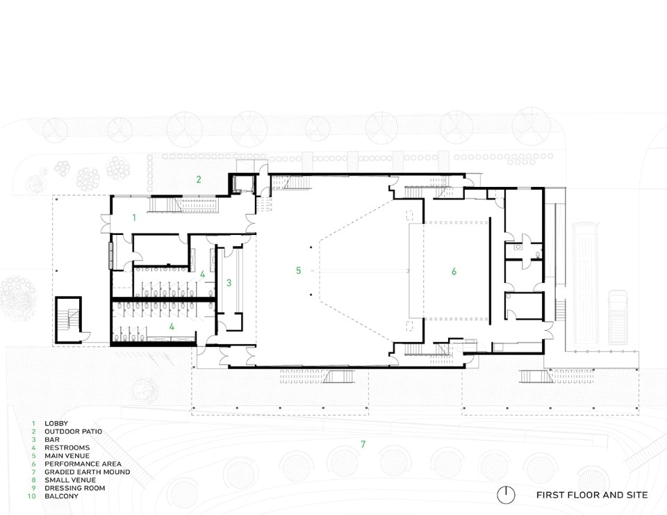
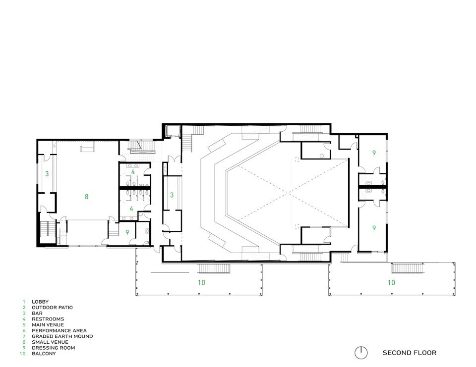
Houston and New York based architects Schaum/Shieh have designed a dynamic cluster of music venues in Houston. The project is an assemblage of new and adapted buildings, openair structures, landscaped areas, and paved and decked surfaces along the Little White Oak Bayou river. The White Oak Music Hall is the anchor of the project. Completed in 2017, the building houses two performance halls.
View gallery
Throughout the building, the material palette is matteroffact and elemental: steel bar, concrete bar, wood bar. The aesthetic is deliberately direct: the circulation is painted in immersive bright colors that pop in contrast to the dark performance and tech rooms and mark the different zones of the building. Like the industrial buildings that have traditionally housed rock and roll venues, the building is built for vigorous use; the materials selected and detailed to sturdily meet and wear with the rough handling expected.
- Project:
- White Oak Music Hall
- Location:
- Houston, United States
- Program:
- concert hall
- Architect:
- Schaum/Shieh
- Design team:
- Troy Schaum, Rosalyne Shieh, Tucker Douglas, Ian Searcy, Ane Gonzalez-Lara, Anika Schwarzwald, Giorgio Angelini, Anastasia Yee, Nathan Keibler, Hazal Yücel, Drew Heller, Amelia Hazinski
- Interior design:
- Gin Design Group
- Structural engineering:
- M-Corp Engineering
- Installations:
- KCI Technologies
- Civil engineering:
- 5 Engineering
- Acoustics:
- Jaffe Holden and SRL International
- Lighting design:
- Lighting Associates Inc.
- Completion:
- 2017
