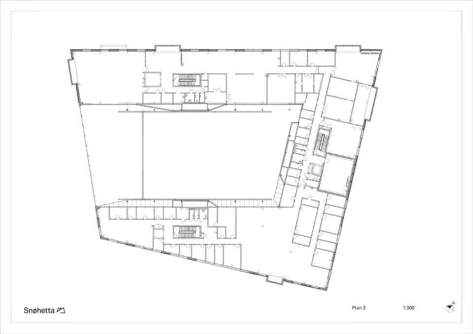
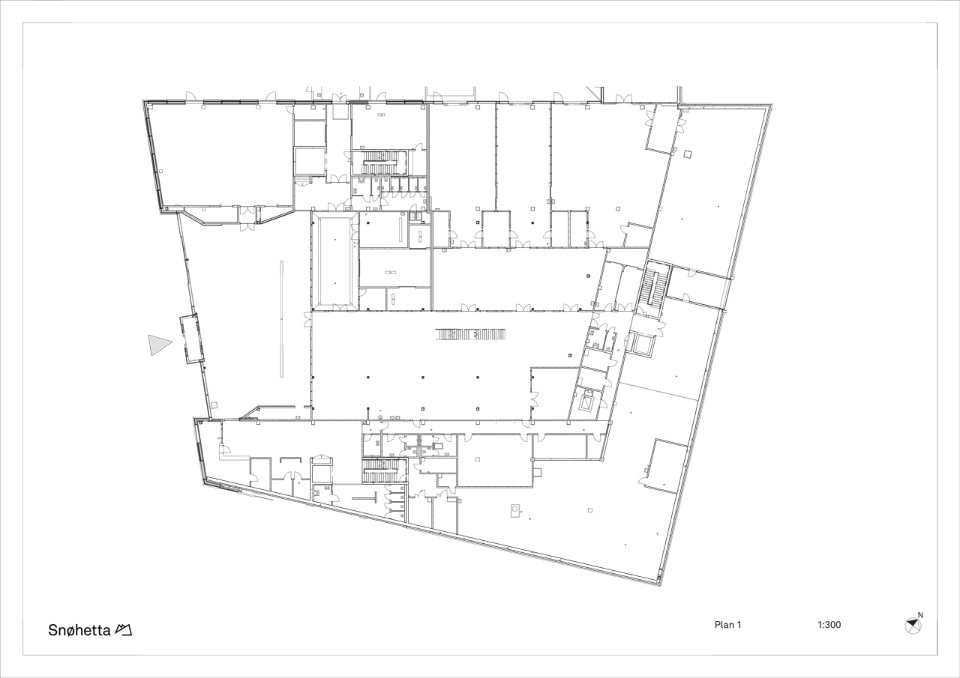
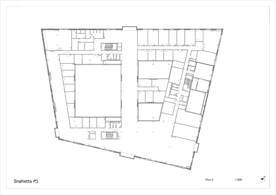
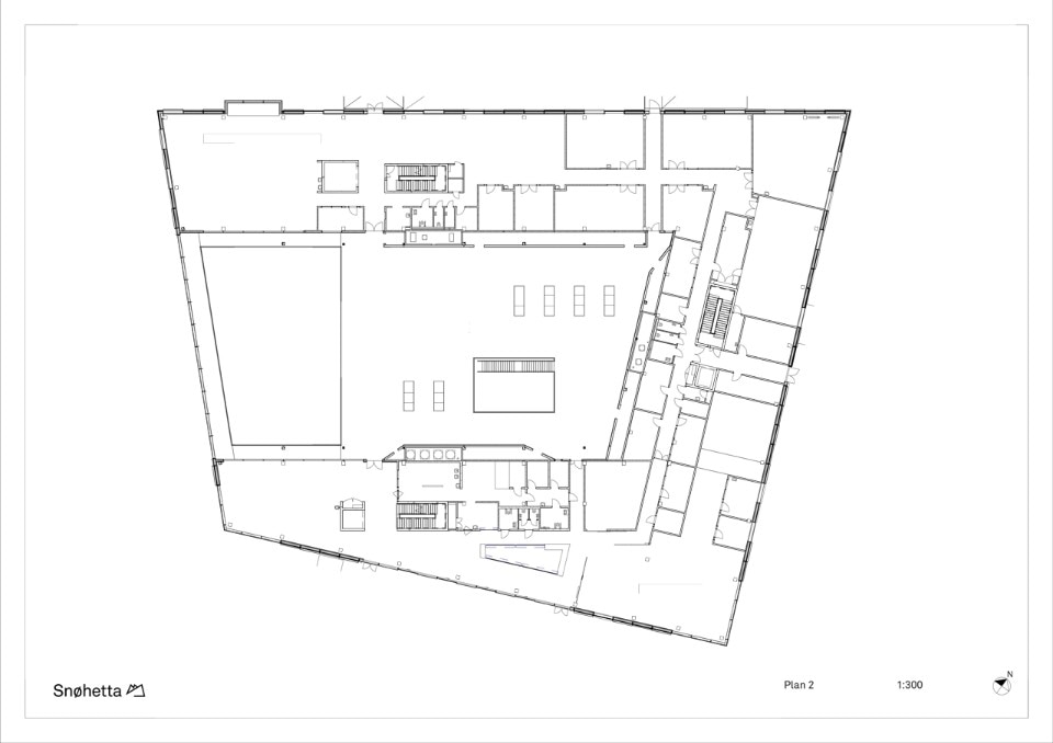
Replacing the former Bergen Academy of Art & Design, the new KMD by Snøhetta has undergone a historic fusion, assembling the previously scattered faculty buildings under one roof. This new 14,800 sqm cross-disciplinary faculty is now the second largest cultural building in Bergen. The building is organized along two axes, one internal, dedicated to students and staff, and one external, open to the public. Under the KMD roof, these axes cross each other in the project hall, one of the most prominent and dominant features of the building.
View gallery
While the creative work areas are designed to provide plain functionality, social and administrative spaces have been designed for people to work and relax together. Among other, the cantilevered box-shaped windows emerging from the facade may serve as social zones where students can come together over a coffee to discuss, relax, and enjoy the view during brakes. The building’s aesthetic does not compete with its purpose of welcoming collective artistic installations and individual expression. It is a clean-cut, environmentally friendly and durable building focused on materials that will withstand the rainy climate of the Norwegian west coast and a high degree of rough use, wear, and tear. The interior palette is kept low key, providing studios, student work areas, and other spaces with a neutral and durable environment suitable for art and design work.
The pre-fabricated raw aluminum elements that clad the building’s exterior compose a puzzle of depth, breadth and length. 900 varied sized seawater-durable crude aluminum elements are protruding from the wall at varying distances, only paused by large cantilevered box-shaped windows punctuating the rhythm of the aluminum surface. The metal cassettes shift according to the weather conditions of the west coast and reinforces the metallic effect of the aluminum. Durability and robustness have been keywords for all decisions made throughout the facade design process. The rainy and sometimes stormy coastal climate demands all exterior materials to not only withstand harsh conditions, but to weather in a way that highlights their unique qualities over time. The crude aluminum surfaces will gradually age and naturally oxidize, heightening the variations in colors and textures.
