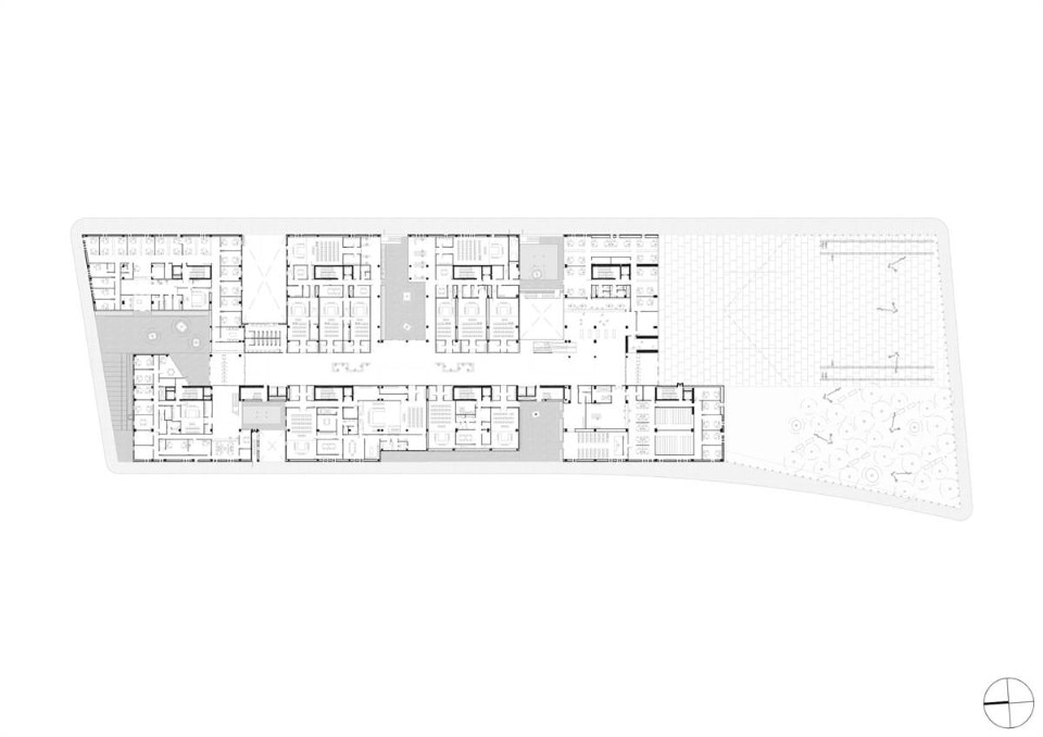
Located in a residential area on the outskirts of Córdoba, the city’s new courthouse by Mecanoo contains 26 courtrooms, a forensic institute and public services. With the smart integration of a striking design that recalls historic Córdoba and its Moorish influences in a contemporary way, the building adds appeal to its surroundings. A section of the old city plan translates in an abstract way into the layout of the courthouse. The city’s traditional courtyards are recognisable in the new design, interrupting the compact building volume. They also bring light and natural ventilation into the adjacent rooms and incorporate palm trees into both the lower and upper courtyards.
View gallery
The building’s compact organisation makes way for a generous public square that highlights the main entrance. During the day, the building casts a cool shadow over the gently inclined square. The perforated glass reinforced concrete facade filters light and captures heat. Coloured ceramic panels facing the courtyards contrast with the building’s other facades. The design clearly structures the complex programme of functions, which become more private higher up the building. At the level of the square, the courthouse features an open ground floor that contains the most public sections such as courtrooms, marriage registry and restaurant.
- Project:
- Palace of Justice
- Location:
- Córdoba
- Progetto:
- administrative building
- Architect:
- Ayesa + Mecanoo
- Completion:
- 2017
