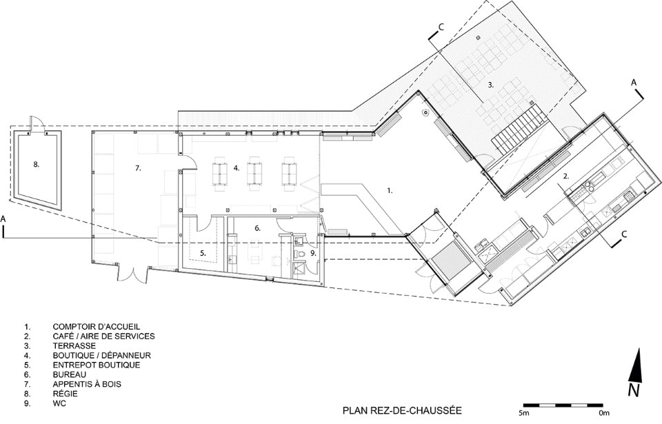
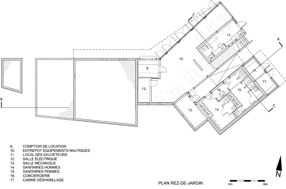
Designed by Anne Carrier architecture in Orford, Canada, this tourist centre sits in a forest, along a narrow escarpment on Camping Road, with Stukely Lake and its beach below. The first half of the building’s main volume gently follows the same contours from which the outdoor amphitheatre is carved. A stratum of the building’s landscape-roof rises gently, echoing the park’s topography. In the centre, part of the building is open to an expansive view of the lake before taking a sharp change of direction, highlighting the building’s entrance and defying the slope.
View gallery
The interior and exterior spaces are interconnected by a network of walkways comprising a catwalk, stairs, covered passageway and an outdoor gap based on the natural course of the trails. The park’s lakes, mountains and forests provided inspiration for the choice of materials. The buildings have a symbiotic relationship with the site’s extraordinary landscape and the materials found there. Wood, in various forms, gives both interior and exterior spaces warmth and coziness. It works in harmony with the indigenous vegetation used for landscaping, and with the slate paving stones and gabion walls that characterize the paths and landscaping.
- Project:
- Centre de services Le Bonnallie
- Location:
- Orford, Canada
- Program:
- touristic center
- Architect:
- Anne Carrier architecture
- Structural engineering:
- Les services exp
- Installations:
- Martin Roy et Associés
- Landscape:
- Agence Relief Design
- Contractor:
- Construction Longer
- Area:
- 430 sqm
- Completion:
- 2016
