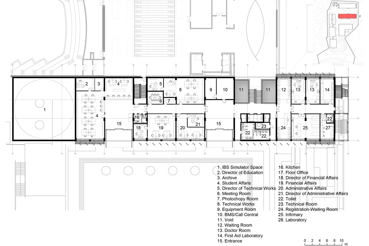
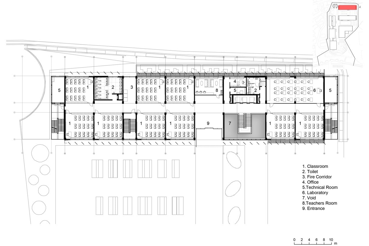
In order not to disturb the natural coastline, building blocks are located closer to the northern border of the site, leaving a spacious green area on the south. This coast area embraces a public pedestrian way that is linked with the adjacent residential district, and a pier for the seaboard training for students. The blocks parallel to the coast are allocated for educational, administration and social facilities where as the blocks vertically placed to the sea incorporate training pool, labs and classrooms.
The upper floor of the social block that has the best vista of the sea is reserved for library. The middle floor of this block is designed as a living passage including small food and beverage shops, ATM units and a mid- sized coffee shop whereas the ground floor is designated as the general cafeteria for lunch meals. Dilim modular sofa designed by Jan Wertel and Gernot Oberfell for Koleksiyon brought new colors and dynamism to different environments. Koleksiyon’s Koray Malhan's designs Guamba, Narcissus coffee tables and Faruk Malhan's designs Plato storage system and Laluna sofa joined these modular pieces as well. Calvino desk systems and Cantata chairs are preferred in refectory.
The main spine reaching from north to south is fragmented into smaller pieces with niches, terraces and different levels to avoid a monumental and harsh axis. The prevailing wind is tamed by the utilization of the blocks parallel to the sea, so that inner courtyards are protected from severe winds. This layout also helped to benefit from the sunlight efficiently.
The spaces that do not need daylight are placed underground while the raised floors and terraces of those places created the open spaces between the building blocks. Detached entrances enable the access to these blocks with surrounding bicycle and vehicle roads thanks to the utilization of the topography.
Sustainable life and energy saving are major principles of any vessels on the sea and thus green campus concept is adopted from the very beginning. The campus generates 45% of its own electric energy, and excess heat energy from this electricity production is used for heating and cooling of the buildings. Fresh water is obtained by purifying seawater and grey and rainwater is used for sanitary and landscaping irrigation purposes.
Perforated 100% recyclable non-mercuric corten steel plates absorb most of the ultraviolet rays and decrease the energy load for cooling. These and many other precautions on sustainability make the Piri Reis Maritime University as the first green campus of Turkey.
Piri Reis University Main Campus, Tuzla, Istanbul
Program: university campus
Architects: Kreatif Mimarlik
Static: YBT Structural Design – Yusuf Timbir
Mechanic: GN Project – Gurkan Gorgun
Electricity: HB Technic – Huseyin Gulsoy
Infrastructure: Proses Engineering – Fazil Uç
Landscape: AN Landscape Design – Arzu Nuhoglu
Green Building Consultant: TURKECO – Duygu Erten
Fire Consultant: Etik Muhendislik – Abdurahman Kiliç
Acoustic Consultant: Duyal Karagozoglu
Multi-purpose Hall Acoustic Consultant: Turker Talayman
Lighting Consultant: ZKLD – Zeki Kadirbeyoglu
Design Team: Aydan Volkan, Selim Cengiç, Aysegul Kapisiz, Onur Arat, Nihat Kalfazade, Ufuk Berberoglu and Erhan Ilicali
Project Management: Alev Akin, Aydan Volkan, Gul Erkmen, Erbug Benguler, Hasan Basri Tugrul, Erhan Ilicali, Korkmaz Akgul, Hakan Koyuncu, Orhan Polat, Gamze Iyigun
Contractor: Sera Yapi
Area: 60,000 sqm
Completion: 2014
