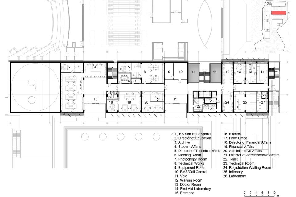
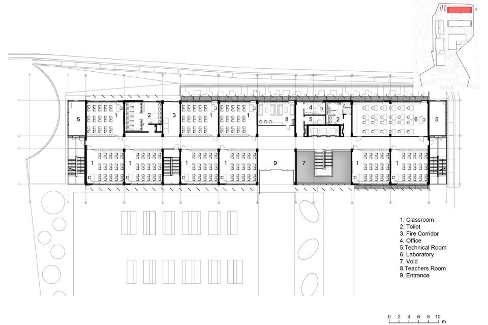
Per non disturbare la linea naturale della costa, i blocchi sono stati collocati vicino al confine settentrionale del lotto, lasciando un ampio spazio verde a sud. Questa zona costiera abbraccia un percorso pedonale pubblico che è collegato con il quartiere residenziale adiacente e un molo per la formazione degli studenti. I blocchi paralleli alla costa sono dedicati all’istruzione, all’amministrazione e alle strutture sociali, mentre quelli perpendicolari ospitano la piscina, i laboratori e le aule.
Il piano superiore del volume dedicato alle attivià sociali, che ha la migliore vista sul mare, è riservato alla biblioteca. Il piano centrale è concepito come una zona giorno di passaggio, con piccoli negozi di cibi e bevande, unità bancomat e una caffetteria, mentre il piano terra è destinato alla mensa. Il divano componibile Dilim, disegnato da Jan Wertel e Gernot Oberfell per Koleksiyon, porta colori e dinamismo nei diversi ambienti. I tavolini Guamba e Narcissus
di Koray Malhan, le armadiature Plato disegni e id ivani Laluna di Faruk Malhan 8tutto Koleksiyon) completano la composizione modulare, insieme ai tavoli Calvino e alle sedie Cantata della mensa.
La passerella che corre da nord a sud è frammentata in pezzi più piccoli con nicchie, terrazze e diversi livelli per evitare un asse monumentale e duro. Il riparo dal vento è fornito dagli edifici paralleli al mare, in modo che i cortili interni siano protetti dalle correnti forti. Questo layout ha anche contribuito a sfruttare la luce solare in modo efficiente.
Gli spazi che non hanno bisogno di luce sono collocati sottoterra, mentre le coperture e le terrazze di questi luoghi creano gli spazi aperti tra i volumi. Ingressi separati consentono l’accesso a questi blocchi dalle strade e dalle piste ciclabili, sfruttando la topografia del luogo.
La sostenibilità e il risparmio energetico sono i principi che guidano la progettazione di qualsiasi nave e, di conseguenza, anche quelli alla base del campus, che genera il 45% della propria energia elettrica, mentre l’energia termica in eccesso che deriva da tale produzione è utilizzata per il riscaldamento e il raffrescamento degli edifici. L’acqua dolce è ottenuta purificando l’acqua di mare, mentre l’acqua piovana e quella grigia viene utilizzato per l’irrigazione. Piastre forate di corten, riciclabili al 100% e prive di mercurio, assorbono la maggior parte dei raggi ultravioletti e diminuiscono il carico di energia per il raffrescamento. Queste e molte altre attenzioni sulla sostenibilità rendono la Piri Reis Maritime University il primo campus verde della Turchia.
Piri Reis University Main Campus, Tuzla, Istanbul
Tipologia: campus universitario
Architetti: Kreatif Mimarlik
Statica: YBT Structural Design – Yusuf Timbir
Meccanica: GN Project – Gurkan Gorgun
Elettricità: HB Technic – Huseyin Gulsoy
Infrastrutture: Proses Engineering – Fazil Uç
Paesaggio: AN Landscape Design – Arzu Nuhoglu
Consulenza per la sostenibilità TURKECO – Duygu Erten
Consulenza antincendio: Etik Muhendislik – Abdurahman Kiliç
Consulenza acustica: Duyal Karagozoglu
COnsulenza acustica per la hall multifunzionale: Turker Talayman
Consulenza illuminazione: ZKLD – Zeki Kadirbeyoglu
Team di progetto: Aydan Volkan, Selim Cengiç, Aysegul Kapisiz, Onur Arat, Nihat Kalfazade, Ufuk Berberoglu e Erhan Ilicali
Project Management: Alev Akin, Aydan Volkan, Gul Erkmen, Erbug Benguler, Hasan Basri Tugrul, Erhan Ilicali, Korkmaz Akgul, Hakan Koyuncu, Orhan Polat, Gamze Iyigun
Impresa: Sera Yapi
Area: 60.000 mq
Completamento: 2014
