Galleria
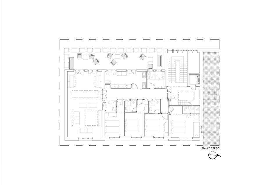
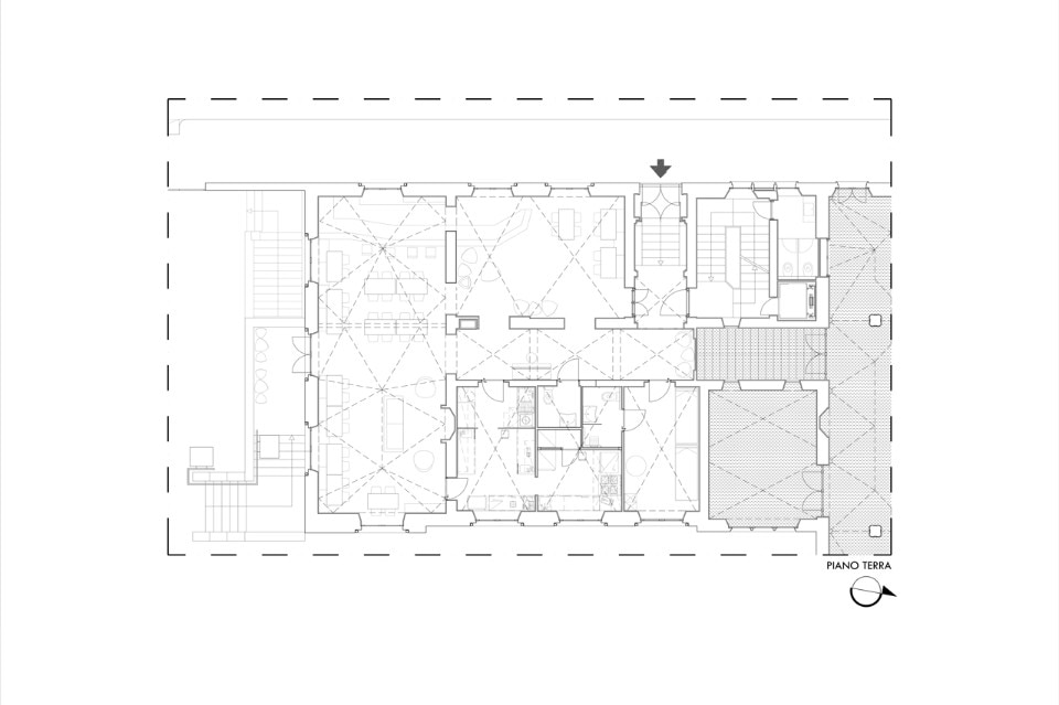
Al piano terra ci sono la reception, la sala della musica e il bar bistrot con la cucina e gli spazi accessori. La luce naturale filtra dalle vetrate colorate creando effetti sorprendenti sulla base neutra delle pareti smaltate e del pavimento di resina che declinano il grigio nelle accezioni più morbide e tenui. La ricchezza plastica delle volte di copertura dei saloni viene valorizzata da installazioni artistiche luminose e da soluzioni illuminotecniche ad alto contenuto di design.
Babila Hostel, Milano
Tipologia: ostello
Architetto: Studio ARX2 – Giancarlo Noce, Giovanni Picolli
Collaboratore: Angela Natale
Area: 950 mq
Completion: 2017
