Galleria
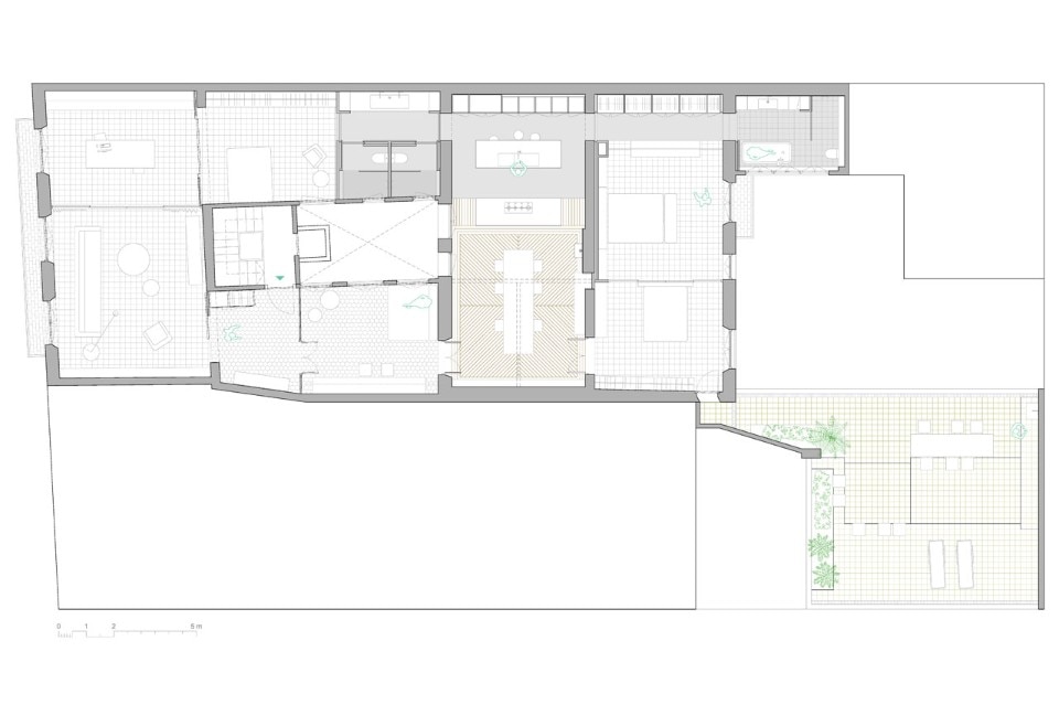
L’appartamento occupa l’intero piano dell’edificio, con un’ampia terrazza che si affaccia sul mercato Boqueria. La pianta originale presentava tanti piccoli spazi senza nessun collegamento all’enorme terrazza irregolare. Prima caotico, lo spazio è diventato un’alcova personale, uno spazio di lavoro, un luogo dove ospitare amici e familiari, senza definire eccessivamente le aree o dando loro una funzione esclusiva.
Galleria
C:\Users\Pedro\Dropbox\nook\03-PUBLICACIONS\25-CARME\CAD\car-publicacio Model (1)
Le travi di legno, i pavimenti e le piastrelle sono stati completamente recuperati, mentre il cemento è stato utilizzato per i piani di lavoro, i lavandini e il pavimento complementare. Sulla terrazza sono stati ripristinati gli elementi originali e la balaustra, mentre lo spazio ha subito una riorganizzazione con parti sovrapposte per essere ottimizzato.
Appartamento-libreria, Barcellona, Spagna
Tipologia: ristrutturazione di appartamento
Architetto: Nook Architects
Strutture: Francesc Gorgas
Impresa: Metric Integra
Cemento: Michael Roschach
Completamento: 2017
