Galleria
/Volumes/PM_ARQUITECTURA/01_WORK/R_REFURBISH/R_026_SANDRITA_BCN/08_PUBLICATIONS/DOCS_VARIOS/R_026_EP_SANDRITA_BCN_v27_PUB.dwg
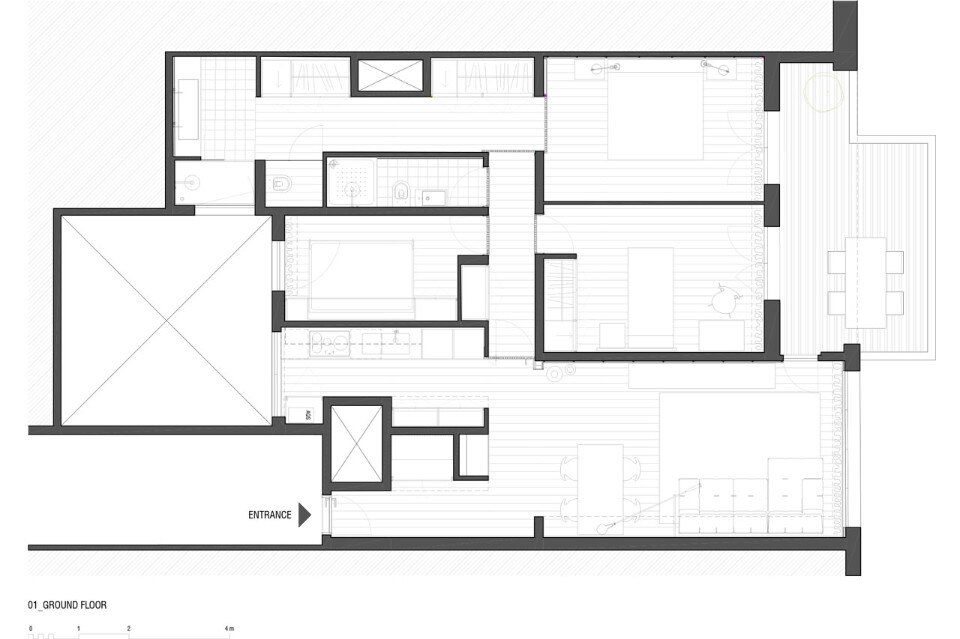
Paulo Martins, Appartamento a Barcellona, pianta
Lo studio portoghese ha recuperato il balcone, in comunicazione con l’interno della “manzana”, il tipico isolato progettato da Ildefonso Cerdà, permettendo di illuminare abbondantemente l’abitazione. L’uso di pochi materiali e l’unità cromatica rendono l’appartamento uno spazio silenzioso e tranquillo, pronto ad accogliere nuove esperienze e memorie.
Appartamento a Barcellona, Spagna
Tipologia: appartamento
Architetto: Paulo Martins
Superficie: 129 mq
Completamento: 2016
