View gallery
/Volumes/PM_ARQUITECTURA/01_WORK/R_REFURBISH/R_026_SANDRITA_BCN/08_PUBLICATIONS/DOCS_VARIOS/R_026_EP_SANDRITA_BCN_v27_PUB.dwg
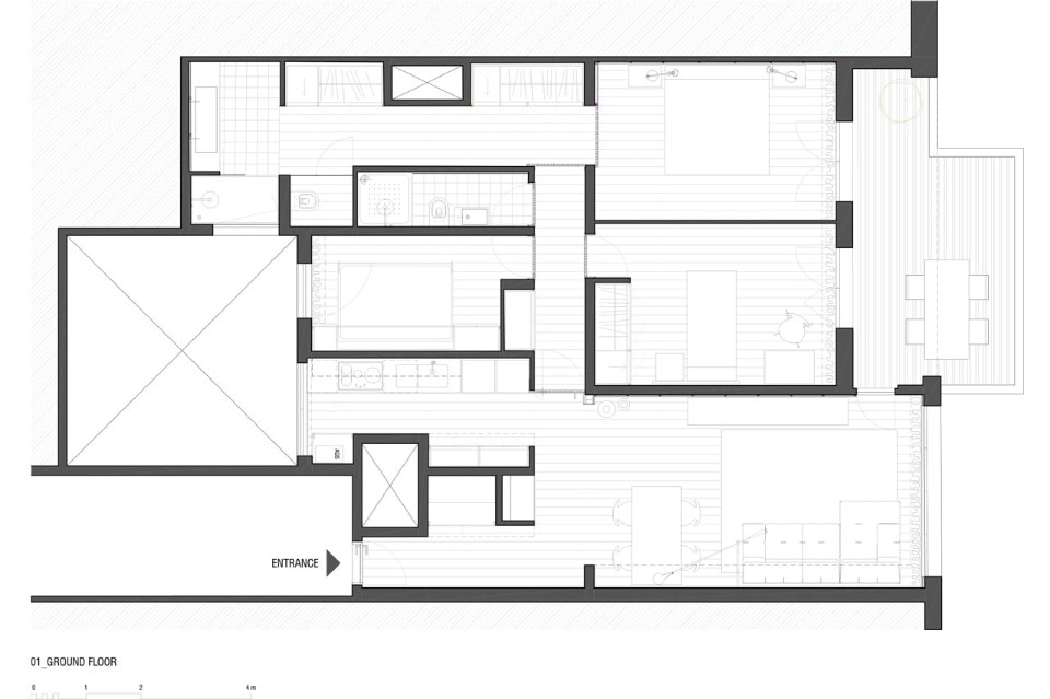
Paulo Martins, Apartment in Barcelona, plan
Portuguese studio wanted to recover the balcony and the dynamics of a manzana inner courtyard, and permit the light of Barcelona to illuminate every corner. The use of few materials and a chromatic unit make this apartment a quiet and peaceful space, like a clean slate, ready to embrace new experiences and memories.
Apartment in Barcelona, Spain
Program: apartment
Architect: Paulo Martins
Area: 129 sqm
Completion: 2016
