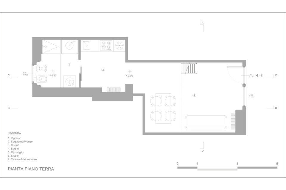
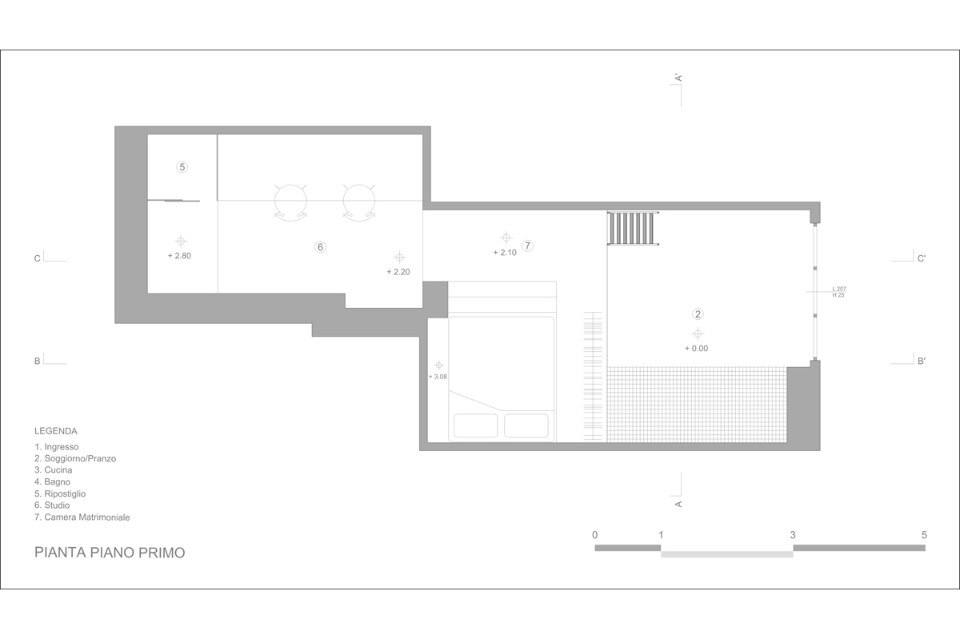
Galleria
Stairs è la casa dell’architetto stesso, fatta con le sue mani, unendo disegno e artigianato. Un esercizio sulla costruzione, sperimentando e scoprendo materiali, impasti e dosi. Architetto, muratore, fabbro e falegname per un compito di autoproduzione: tutti possiamo realizzare un arredo, tutti possiamo costruire uno spazio per abitarlo.
Stairs, Milano
Tipologia: appartamento
Architetto: FuGa_ Officina dell’Architettura – Francesco Ursitti
Completamento: 2017
