View gallery
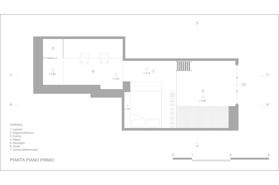
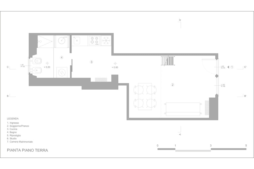
Stairs is also the architect’s house, made with his own hands, combining design and craftsmanship. It is an exercise on building, testing and discovering new materials, mixtures and quantities. He was at the same tame an architect, a blacksmith and a carpenter for a task of self-production. Everyone can create furniture and everyone can build a space to live in.
Stairs, Milan, Italy
Program: apartment
Architect: FuGa_ Officina dell’Architettura – Francesco Ursitti
Completion: 2017
