Galleria
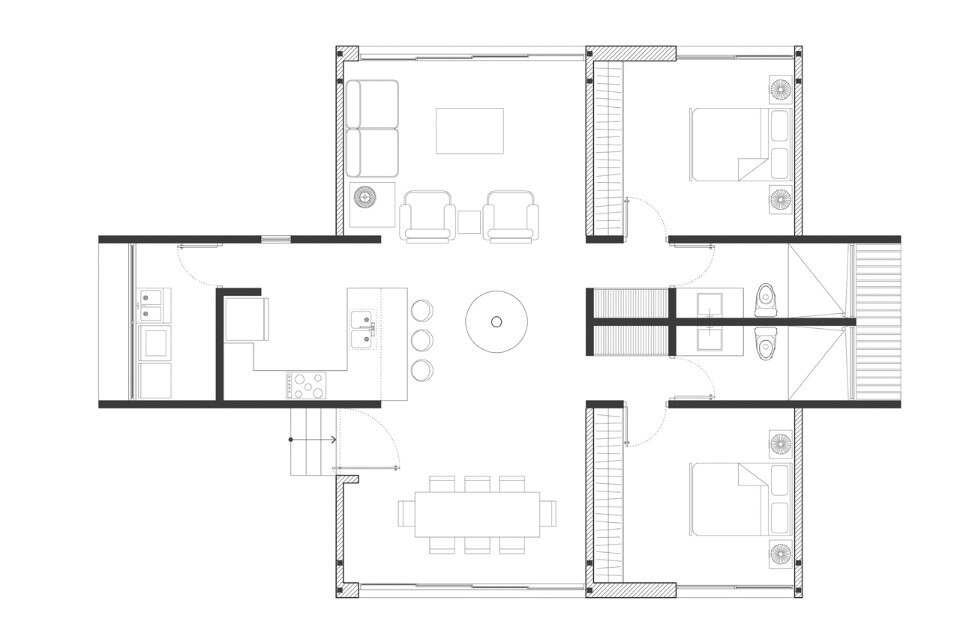
Rifugio EFC, Jardín de Dota, San José, Costa Rica
Tipologia: casa di montagna
Architetti: VOID
Team di progetto: Sergio Frugone, Felipe Rossi, Ricardo Sevilla
Design d’interni: Diseño Cinco
Impresa: GAACO
Area: 124 mq
Completamento: 2016
