View gallery
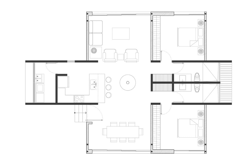
EFC Cabin, Jardín de Dota, San José, Costa Rica
Program: mountain cabin
Architects: VOID
Team: Sergio Frugone, Felipe Rossi, Ricardo Sevilla
Interior design: Diseño Cinco
Contractor: GAACO
Area: 124 sqm
Completion: 2016
