Galleria
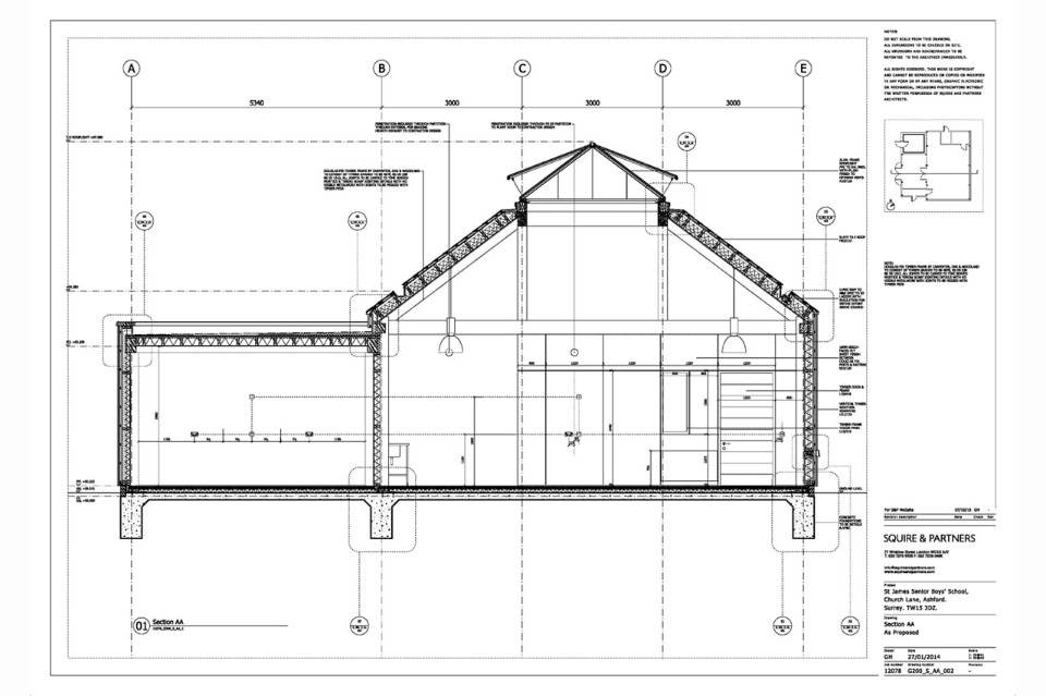
Design Technology Block, St James School, Surrey, Regno Unito
Tipologia: laboratorio
Architetti: Squire and Partners
Committente: St James Senior Boys’ School
Impresa: STP Solutions Ltd
Estimo: Bollingbrook
Strutture: Eckersley O’Callaghan
Fornitura del legno: Carpenter Oak & Woodland
Completamento: 2015
