View gallery
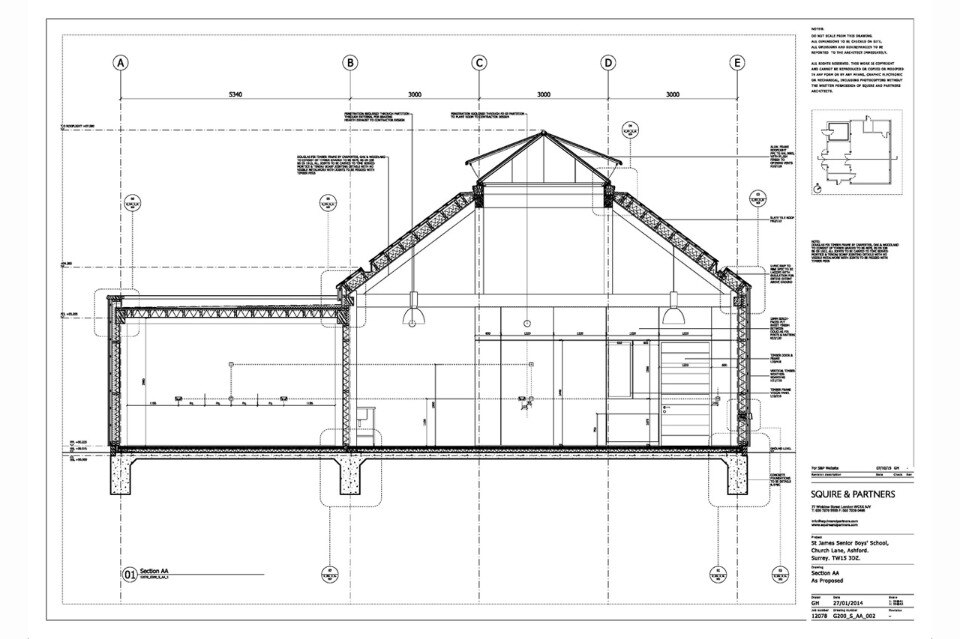
Design Technology Block, St James School, Surrey, UK
Program: workshop
Architects: Squire and Partners
Client: St James Senior Boys’ School
Contractor: STP Solutions Ltd
Quantity Surveyor: Bollingbrook
Structure: Eckersley O’Callaghan
Wood Supplier: Carpenter Oak & Woodland
Completion: 2015
