La metafora dei viaggi nello spazio viene utilizzata per rileggere il tradizionale significato del termine “ereditare”, evidenziandone una mutazione profonda nel significato contemporaneo: non più atto statico e passivo, bensì processo attivo e non pianificabile, in cui è cruciale l’attiva interpretazione e trasformazione di quello che riceviamo dal passato.
I programmi spaziali del XX secolo, colossali progetti intrapresi dai governi a partire dagli anni Sessanta e Settanta, dimostrano chiaramente la natura imprevedibile dei processi ereditari contemporanei. Se infatti l’esplicita intenzione di questi programmi era quella esplorare i confini dell’universo e colonizzare gli altri pianeti, questo tipo di “eredità” perseguita è stata disattesa, mentre le ricadute pratiche della ricerca spaziale nella vita di tutti i giorni sono risultate invece molto più frequenti e importanti di quanto si sarebbe potuto immaginare, in termini di nuovi materiali e tecniche innovative – definiti dalla NASA spin-offs.
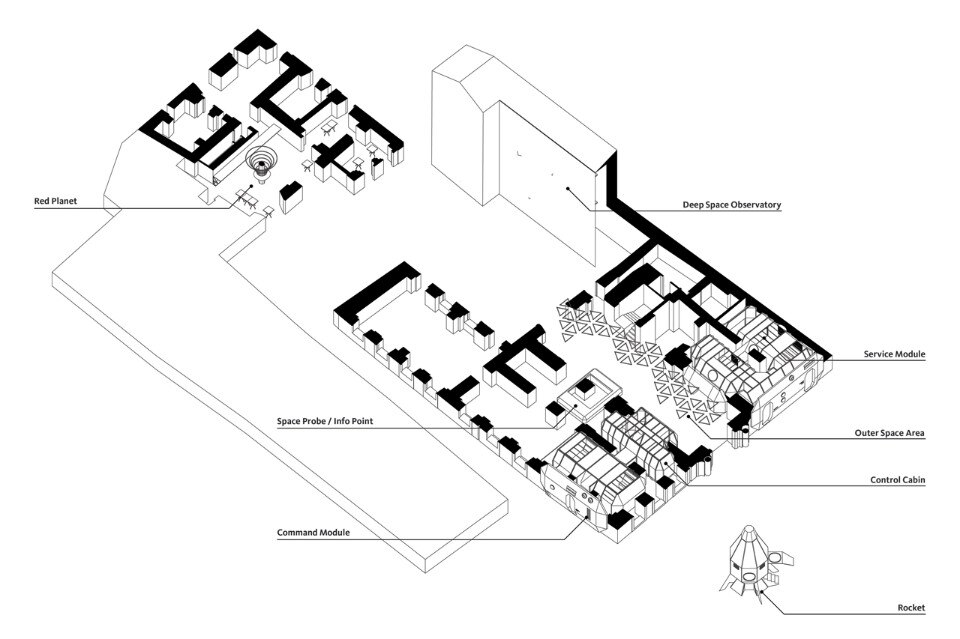
Galleria
Spin-Off, GrazMuseum, Graz, Austria
Tipologia: allestimento
Architetti: Orizzontale
Committente: Steirischer Herbst Festival GmbH
Impresa: Tischlerei Johann Gollob, Franz Kohlbacher Holzbau
Area: 400 mq
Completamento: 2015
