The project reflects on the general idea of Heritage and its change in meaning and essence from the past through the present and toward the future. If we think heritage we might be affected by some ancient traditions and uses, in which goods and estates would be passed on from one generation to another through decades and centuries. If until some decades ago inheriting something was mostly a static and passive action, while the act of bequeath was the active one, today, due to social changes, technological advancement and economical transformations, seems to be the opposite. Leaving a legacy can be very hard to plan, while at the same time receiving it has become an active, often challenging, process, that requires inventiveness, improvisation, imagination, effort and dedication.
Giving/receiving heritage is an unplanned, un-plannable process, and the resulting need of active interpretation and transformation of what we receive from the past is crucial. XX century space programs, these enormous, colossal efforts undertaken by governments, during the ’60s and the ’70s, demonstrate pretty clearly the unpredictable nature of contemporary inheritance processes.
The explicit intention of these programs was to promote utopian plans, like human colonization of the moon and other planets, lay the foundations for space travel, building space stations and space ships. In the middle term, this kind of pursued “heritage” has been unfulfilled. At the same time, though, the huge investment made in space travel brought over the years to the development of a large numbers of technological advancements in a variety of fields, and resulted in a heavy impact on our everyday life. The by-products of space research, referred by NASA as SPIN-OFFS, invaded our houses, our workplaces, our vehicles, our hospitals, and even our clothing (e.g. memory-foam mattresses, cordless vacuum cleaners, wireless phones and headsets, water resistant fabrics, swim-suits, freeze-dried food, water-purification systems, solar cells, LED lights, reflective coatings, insulation materials, cell-phone cameras, ear thermometers…).
Thus, while in the ’60s the valuable project was space travel and all this technology was seen as a by- product, today the dreams of imminent space colonization seems pure science-fiction, and the “by- products” proved to be very useful! It seems clear that heritage is something to be discovered in retrospection, and not a priori
View gallery
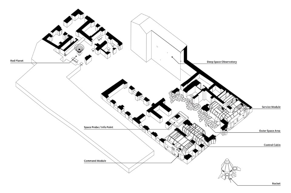
Spin-Off, GrazMuseum, Graz, Austria
Program: exhibition design
Architects: Orizzontale
Client: Steirischer Herbst Festival GmbH
Contractor: Tischlerei Johann Gollob, Franz Kohlbacher Holzbau
Area: 400 sqm
Completion: 2015
