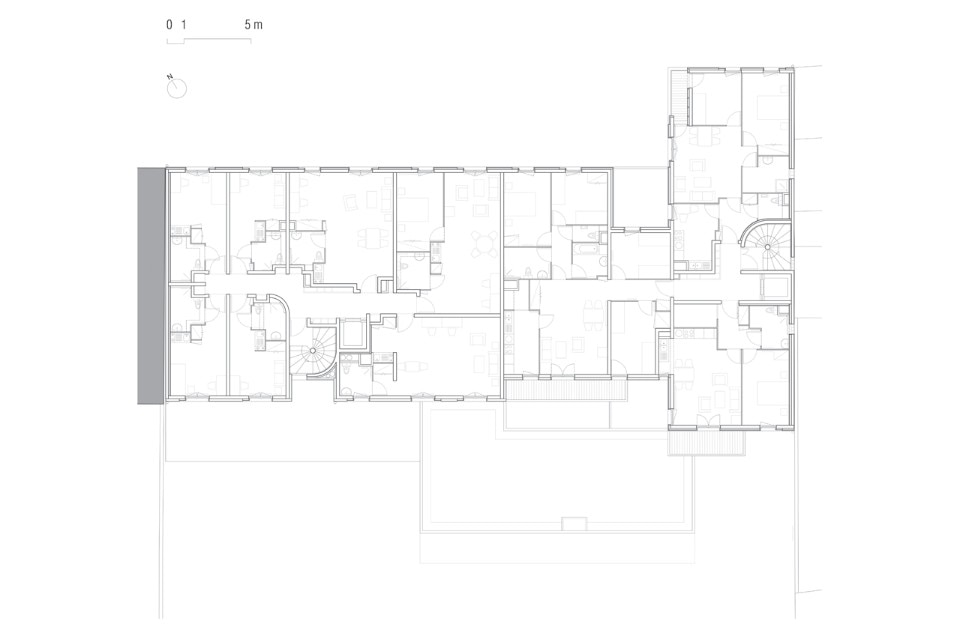
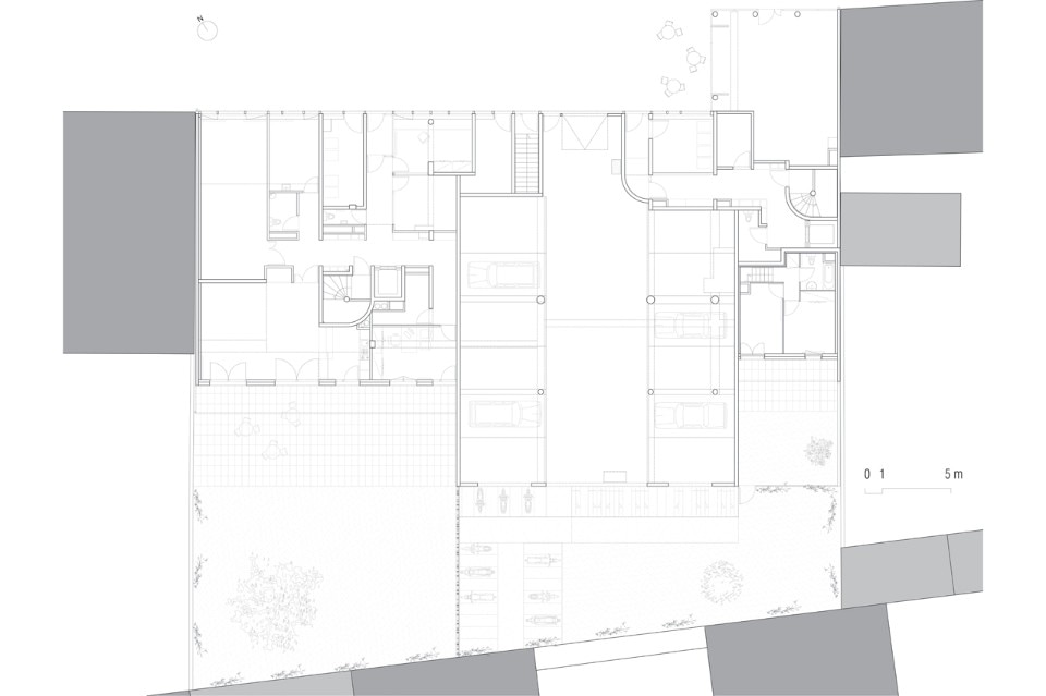
Due volumi distinti a forma di T corrispondono a due funzioni diverse: le residenzie sociali nel volume parallelo alla strada e le case famiglia in quello perpendicolare. I due volumi dialogano attraverso l’interruzione e la continuità dei materiali utilizzati ai piani superiori e per il corpo principale e proteggono i giardino collocati nella porzione posteriore del lotto.
Le facciate in mattoni di colore diverso sono punteggiate dalle aperture posizionate a diverse altezze.
Galleria
ITAR architecture, Aubervilliers, 93, Aubervilliers, Parigi, Francia. Pianta del piano terra
ITAR architecture, Aubervilliers, 93, Aubervilliers, Parigi, Francia. Pianta del terzo piano
ITAR architecture, Aubervilliers, 93, Aubervilliers, Parigi, Francia. Pianta del quinto piano
Aubervilliers, 93, Aubervilliers, Parigi, Francia
Tipologia: case popolari
Architetti: ITAR architecture
Responsabile di progetto: Groupe 3F - Résidences Sociales de France
Costo: 3.800.000 €/HT
Area: 2.500 mq
Completamento: luglio 2015
