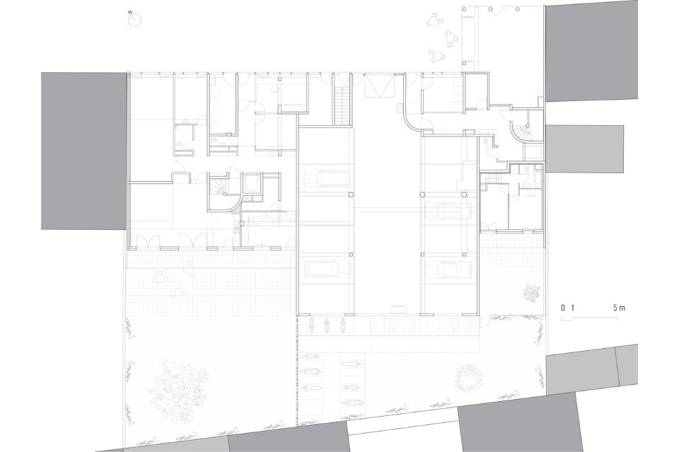
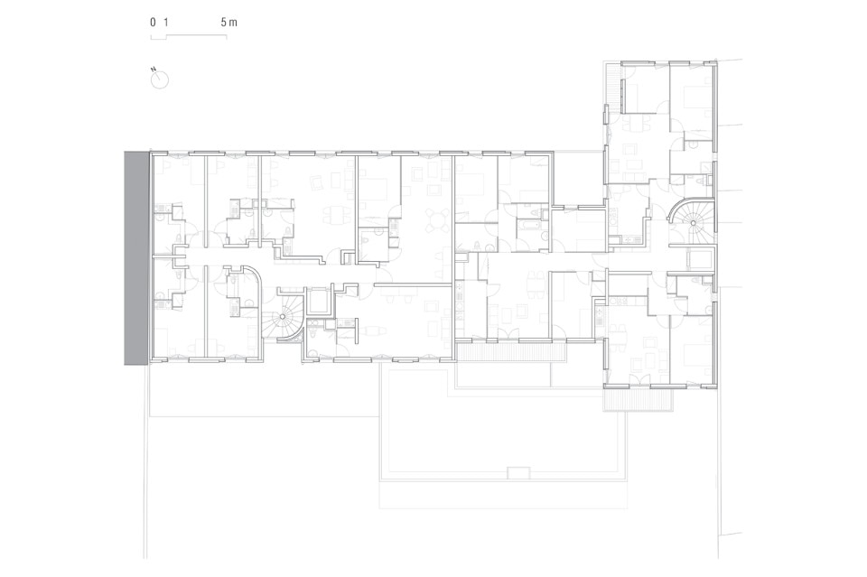
Two distinct T-shaped volumes correspond to the two different aspects of the development: the social accommodation in the building parallel to the street and the family homes built on the perpendicular site. The two volumes create a dialogue by the break and the continuity of the materials used on the top floors and the main body of the building making it possible to keep the back section of the lot for gardens.
The differently coloured brick facades are punctuated by window frames positioned at differing heights.
View gallery
Aubervilliers, 93, Aubervilliers, Paris, France
Program: social housing
Architects: ITAR architecture
Project leader: Groupe 3F - Résidences Sociales de France
Cost: 3 800 000 €/HT
Area: 2,500 sqm
Completion: July 2015
