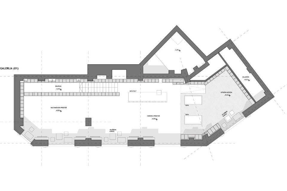
Lo storico edificio in cui si trova il nuovo centro è un palazzo risalente alla prima metà del secolo scorso. Il concetto architettonico degli interni aggiorna l’impianto esistente con uno scenario composto da librerie che danno allo spazio un aspetto moderno. Le librerie sono l’elemento centrale degli interni, dichiarando la sua funzione per i visitatori e la città. Ampie superfici vetrate orientate verso il colonnato aprono la vista verso l’interno del negozio, che diventando così parte della città. Lo spazio urbano diventa quindi un’arena per eventi, workshop e conferenze.
Lo spazio interno è caldo e invitan i visitatori a entrare. Il Centro del Libro Sloveno non è solo una libreria, ma un luogo per eventi sociali e culturali per tutti i tipi di visitatori. Per i bambini, c’è un angolo lettura attrezzato con giochi, pubblicazioni per bambini e laboratori.
Il visitatore entra circondato da libri. La composizione degli scaffali, accompagnata da esposizioni interattive, diventa il punto focale dello spazio. Il materiale che domina è il legno, in contrasto con il luminoso pavimento liscio.
Galleria
W:\03 promocija\44 INTERIER LETA\tlorisi Model (1)
Centro del Libro Sloveno a Trieste
Tipologia: libreria
Architetti: SoNo Arhitekti
Team di progetto: Edvard Blažko, Marko Volk, Nejc Batistič, Aleš Plesničar, Igor Spetič
Area: 177 mq
Completamento: 2015
