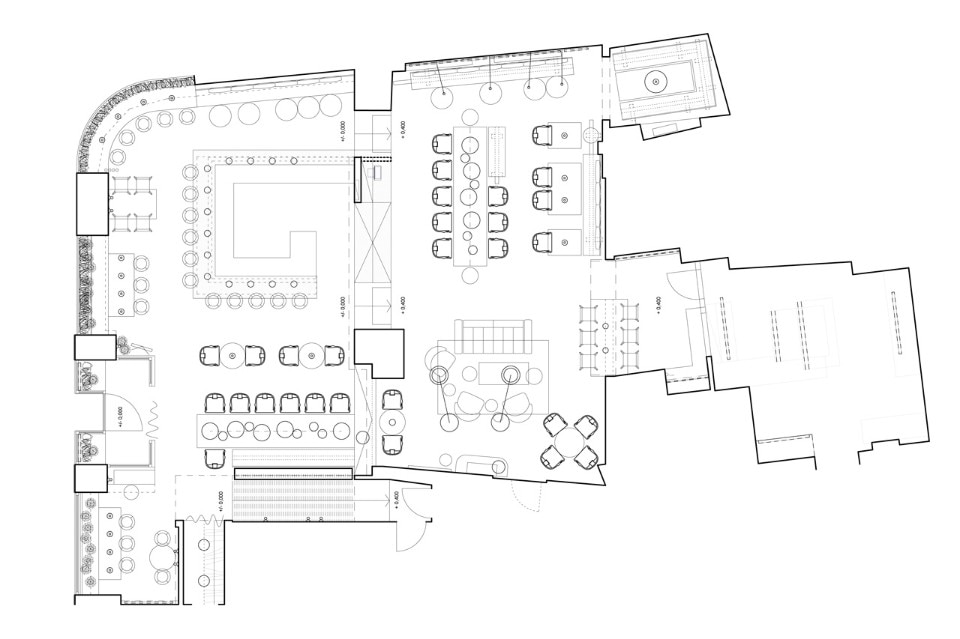
Gli architetti Dagmar Štěpánová e Katarina Varsova dello studio Formafatal, che ha progettato gli interni, hanno diviso lo spazio in due parti principali, impostati a due livelli differenti. Il luminoso ingresso è dominato da un bar centrale, mentre sul retro si trova una zona più intima con tavoli, una zona chill-out con poltrone e un “salotto”.
Altro elemento importante dello spazio è la cucina visibile non appena si entra nel ristorante. Tutti gli ambienti sono arredati con tavoli in legno, strutture in metallo e sedute in cuoio argentino.
Galleria
/Users/dagmars/Desktop/dagmars/projekty/GRAND FIERRO/projekt/GRAN FIERRO_projekt_ID.dwg
Formafatal, Gran-Fierro, Praga, Repubblica Ceca. Prospetti
/Users/dagmars/Desktop/dagmars/projekty/GRAND FIERRO/projekt/GRAN FIERRO_projekt_ID.dwg
Formafatal, Gran-Fierro, Praga, Repubblica Ceca. Prospetti
Gran-Fierro, Praga, Repubblica Ceca
Tipologia: ristorante
Architetti: Formafatal (Dagmar Štěpánová, Katarína Varsová)
Area: 250 mq
Completamento: 2015
