Galleria
Z:\PROJECTS\1305 DREAM HOTEL\_PIIRUSTUKSET\JULKAISTAVAT_DWG\ar 1305 103 01 pohjapiirustus 2k_julkaisu Julkaisu_200 (1)
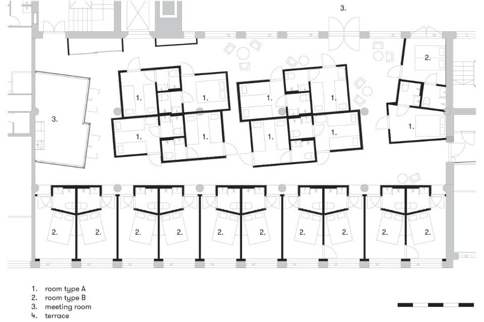
Studio Puisto, Dream Hotel, Tampere. Pianta
Dream Hotel, Tampere, Finlandia
Tipologia: hotel
Architetti: Studio Puisto Architects
Impresa: Cajamäki Oy
Completamento: 2014
