La facciata d’ingresso, chiusa, copre la vista a chi arriva. Avvicinandosi alla casa si intravede il lago attraverso la porta d’ingresso a vetri e si percepisce la Chiesa nella sagoma dell’edificio.
All’interno tutto lo spazio si apre sulla vista mozzafiato: il volume a capanna ospita la cucina, affacciata sul lago e sul bosco. Gli interni minimalisti e senza soluzione di continuità sono tutti giocati sul contrasto tra bianco e nero.
Galleria
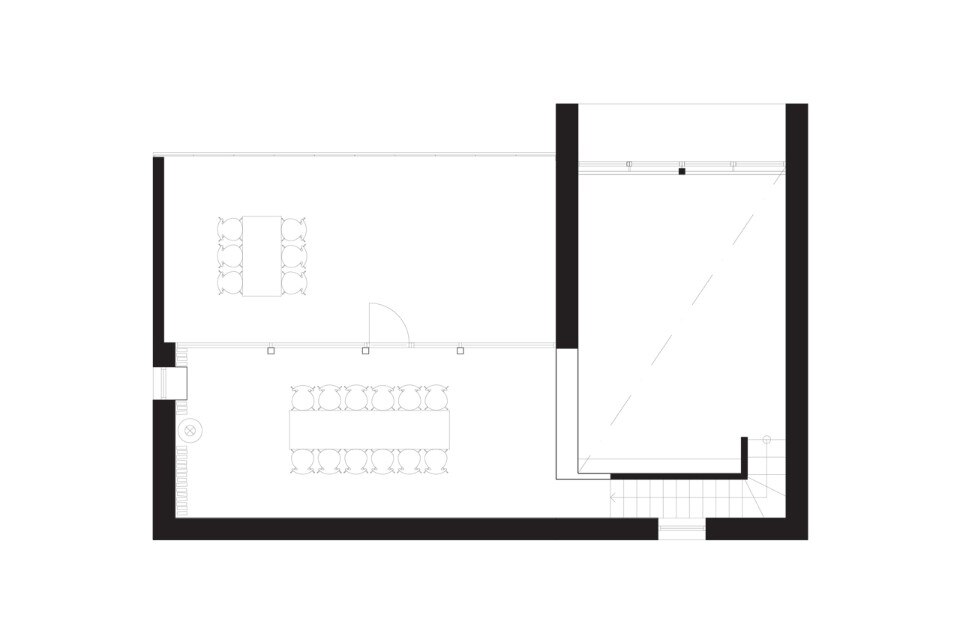
Kjellgren Kaminsky Architecture, Villa Bondö, Gravsjön, Mölnlycke, Svezia. Pianta del piano interrato
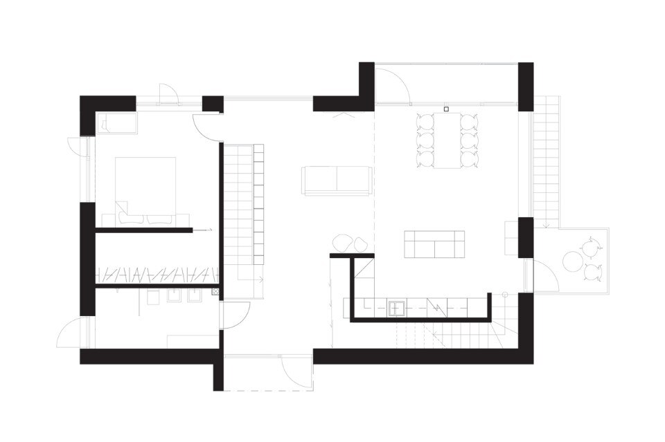
Kjellgren Kaminsky Architecture, Villa Bondö, Gravsjön, Mölnlycke, Svezia. Pianta del primo piano
Kjellgren Kaminsky Architecture, Villa Bondö, Gravsjön, Mölnlycke, Svezia. pianta del terzo piano
Villa Bondö, Gravsjön, Mölnlycke, Svezia
Tipologia: casa unifamiliare
Architetti: Kjellgren Kaminsky Architecture
Team: Fredrik Kjellgren, Joakim Kaminsky, Sanna Johnels
Committente: famiglia Sköld
Area: 250 mq
Completamento: 2014
