Galleria
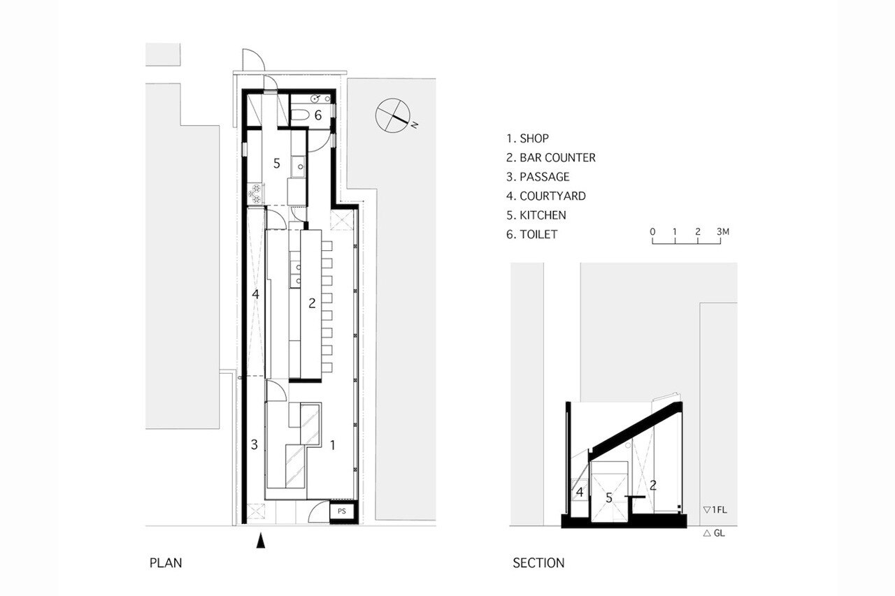
Wine&Sweets Tsumons, Fukuoka, Giappone
Tipologia: negozio e bar
Design: Case-real (Koichi Futatusmata, Tomoki Katada)
Collaborazione e costruzione: Jikuu-kenchiku-koubou
Progetto illuminotecnico: Masaaki Sato (ModuleX)
Arredi: E&Y
Completamento: 2014
