View gallery
Case-Real, Tomoki Katada, Wine&Sweets Tsumons, Fukuoka, Japan. Exploded axonometrical view
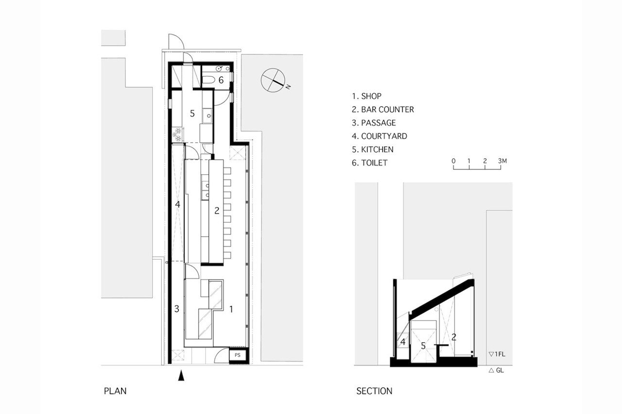
Wine&Sweets Tsumons, Fukuoka, Japan
Program: shop and bar
Design: Case-real (Koichi Futatusmata, Tomoki Katada)
Design Cooperation, Construction: Jikuu-kenchiku-koubou
Lighting Plan: Masaaki Sato (ModuleX)
Furniture: E&Y
Completion: 2014
