L'Eixample, tra ristoranti, luoghi d’arte e negozi alla moda, è uno dei quartieri più vivaci e popolosi di Barcellona, dove l’impronta del modernismo catalano è più forte. Progettato a metà del XIX secolo come “ampliamento” (“eixample” in Catalano significa appunto “ampliamento”) della città storica al di fuori delle mura medioevali, il disegno del quartiere sviluppato dal Plan Cerdá prevedeva un sistema urbano funzionale e ugualitario, che offriva abitazioni salubri ed accessibili: case con massimo tre piani, intervallate da giardini e cortili interni, realizzate con tecnologie e materiali allora innovativi e in cui particolarmente attento era lo studio degli orientamenti e dei flussi di illuminazione e ventilazione naturali.
Una di queste realizazioni è la palazzina in Calle Villarroel, costruita nel 1890: in uno degli appartamenti, Ruben Casquero + Annapratsjoanvalls hanno realizzato un intervento di ristrutturazione interessante per pulizia del progetto e attenzione al processo, che crea un'abitazione contemporanea scrivendola sulle tracce visibili della storia precedente degli spazi.
View gallery
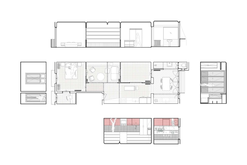
L’appartamento originario comprendeva una galleria “passante” su cui si attestavano, da un lato, le due camere da letto inframmezzate da un piccolo soggiorno centrale e, dall’altro, la cucina disposta in linea e lo studio.
Caratterizzato da un doppio affaccio su strada in coerenza con l’impianto tipologico del contesto, lo spazio risultava tuttavia angusto e frammentario a causa della separazione degli ambienti.
Lo studio ha puntato allora su un intervento minimale, finalizzato a consentire una spazialità più fluida e ariosa, nel rispetto del layout originario: attraverso la realizzazione di aperture nelle pareti divisorie e l’allargamento delle soglie delle porte, sono state create direttive visuali che interconnettono gli ambienti, in modo da dilatare la ristrettezza degli spazi e migliorare le condizioni di luce e ventilazione nel centro dell'abitazione.
L'attenzione a preservare l’aura del luogo si è concentrata su alcuni degli elementi originali, accuratamente conservati – come le piastrelle dei pavimenti e le modanature del controsoffitto – affiancando loro un lessico contemporaneo di materiali comunque selezionati per rievocare lo spirito artigianale di un tempo: pavimenti in cotto, telai in acciaio saldato e finestre in pino lamellare, realizzati appositamente da maestranze locali.
I toni sanguigni e terrosi di tessili, rivestimenti ceramici della cucina, pavimenti in cotto e ceramica dalle diverse trame geometriche dialogano con le superfici ruvide di porte, con le finestre e gli arredi su misura in legno grezzo, conferendo agli spazi un carattere caldo e avvolgente, che in una nota nostalgica assume un sapore morbido e informale.
