Con una ricchissima facciata rivestita di azulejos in perfetto stile portoghese che guarda Rua José Falcão, il complesso di edifici su cui è stato fatto l'intervento si colloca all’interno del tessuto storico della città di Porto.
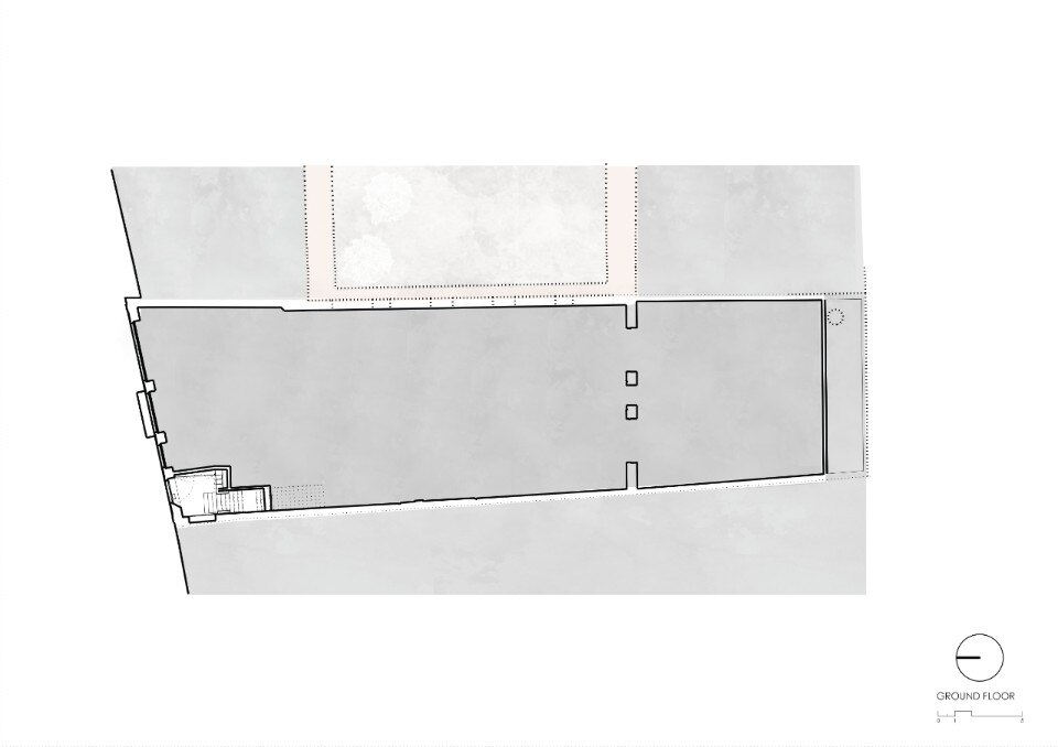
Un tempo fabbrica, magazzino e vetrina delle ceramiche Devesas, con annessa un’officina per la lavorazione del marmo, il complesso viene oggi riqualificato dallo studio di architetti locali Anarchlab, per ospitare 12 appartamenti, tra cui duplex e ampi bilocali.
L’interno del lotto, completamente distrutto al momento della ristrutturazione, è stato demolito e ricostruito in sagoma, mentre le facciate sono state restaurate secondo il disegno originale senza alcuna modifica eccetto che per quella esposta a Sud. Quest’ultima, non soggetta a tutela, dipinta di giallo e riconnessa alla città con un grande oblò, acquisisce un nuovo equilibrio cromatico e geometrico.
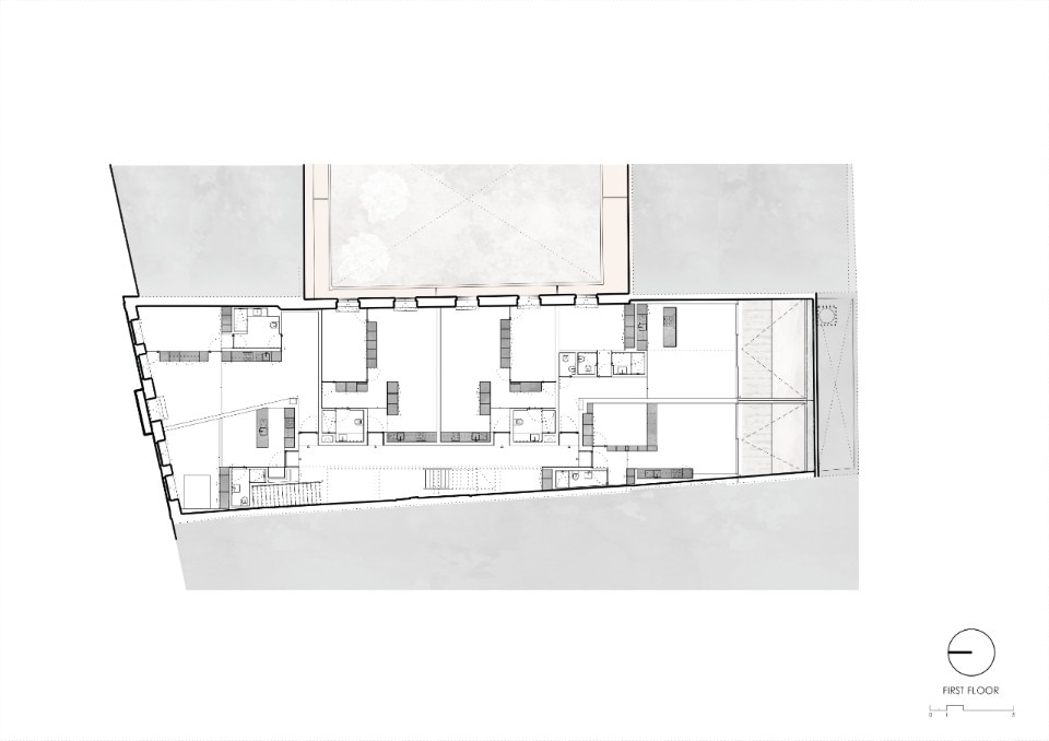
Negli interni, l’intelaiatura del tetto, scandita dalla modulazione dei grandi lucernari, insieme alla nuova struttura di acciaio che si innesta nell’antica muratura perimetrale, definiscono un disegno puro ed essenziale degli spazi comuni.
Gli appartamenti sono invece organizzati attraverso l'attenta distribuzione di volumi d’arredo dall'aspetto monolitico, omaggio ai blocchi di pietra che popolavano il magazzino nella fabbrica di ceramica. Lo spazio domestico si definisce tra i vuoti di queste masse costruite solide, dai toni neutri e scuri in contrasto con le cromie chiare dei pavimenti di legno e dei muri bianchi.
