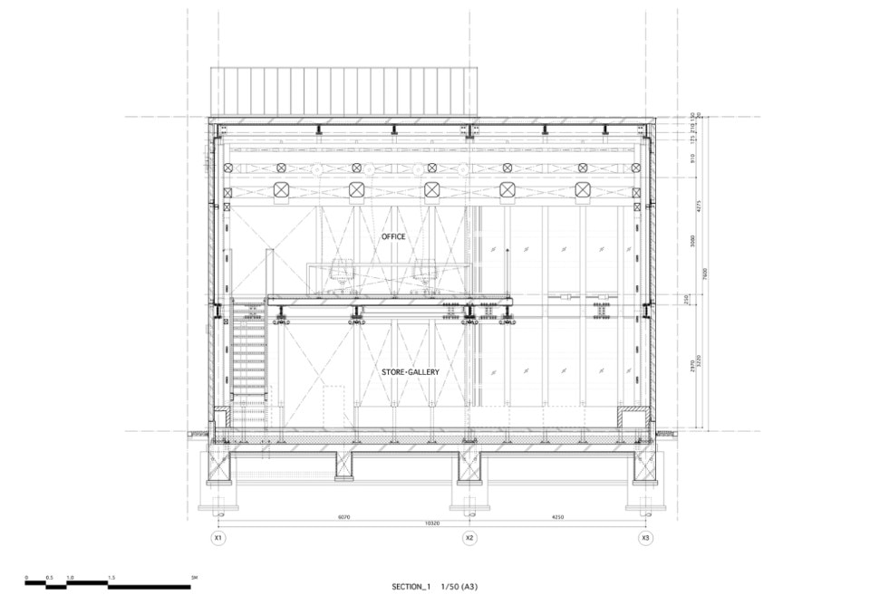
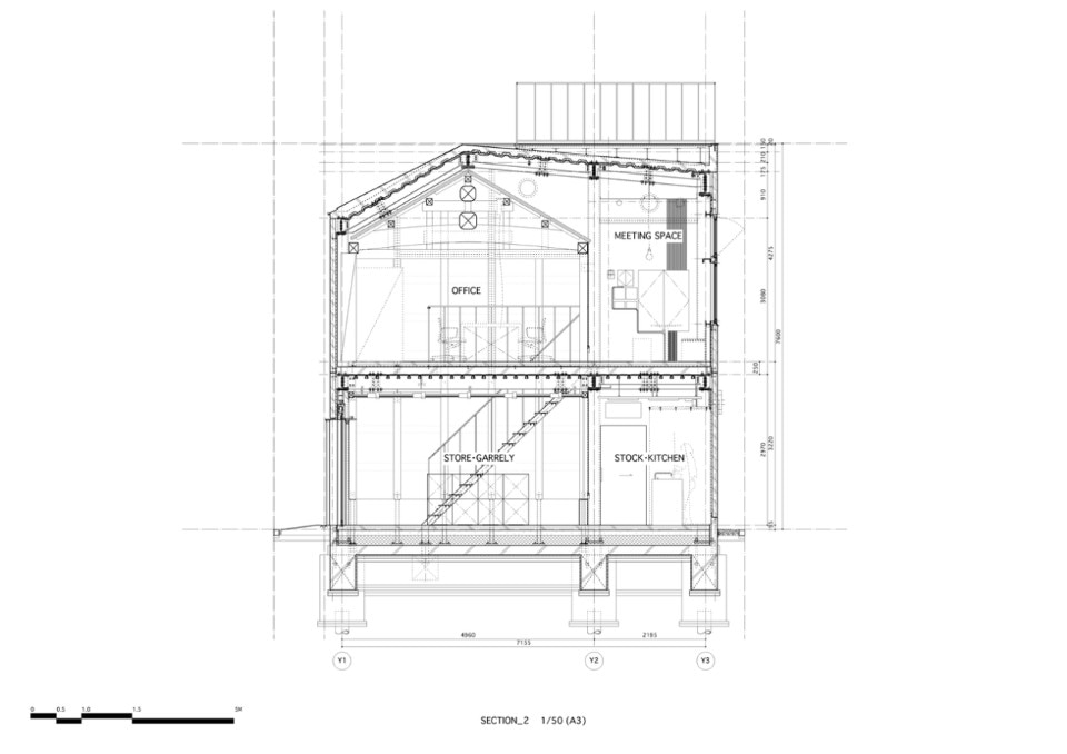
T-HOUSE è il un nuovo spazio espositivo e di lavoro per il team di progettazione di New Balance a Tokyo. L’idea della committenza era quella di trapiantare un vecchio "kura", un magazzino tradizionale giapponese di legno, dalla città di Kawagoe all’interno di un grande capannone della capitale.
I progettisti reinterpretano l’idea del cliente e, scongiurando il rischio del “oggetto antico esposto in un museo” danno nuovo significato all'intelaiatura strutturale ricollocata. “Questa architettura e il “kura” al suo interno non sono più finte quando sfruttiamo le loro condizioni esistenti e diamo loro nuove funzioni” racconta Jo Nagasaka, fondatore di Schemata Architects.
L'ispirazione arriva casualmente quando uno dei carpentieri, durante i lavori di riassemblamento della struttura di legno, improvvisa un portautensili servendosi dei fori esistenti nei pilastri e utilizzandoli secondo la giunzione ad incastro a mortasa e tenone.
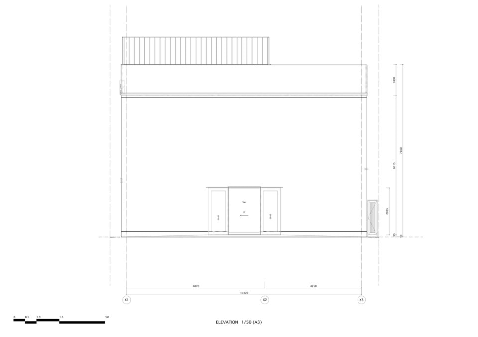
Dall'esterno, il volume puro e compatto del capannone lascia intravedere lo scenario interno da un'unica piccola apertura d'ingresso.
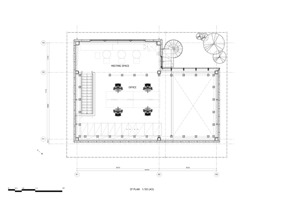
Contrappunti materici, tattili e cromatici creano una suggestiva ambientazione all’interno del mondo di New Balance. Il legno massello scalfito dalla patina del tempo viene combinato con la resina liscia grigia della pavimentazione e la finitura bianca grezza delle pareti del capannone. Elementi di MDF incastrati nei fori dei pilastri di legno fungono invece da dispositivi di supporto per faretti, appenderie e piedistalli su cui viene allestita una selezione raffinata di calzature, tè giapponese e pezzi di ceramica di manifattura locale.
- Progetto:
- T-HOUSE New Balance
- Luogo:
- Hamacho, Nihonbashi, Chuo, Tokyo
- Programma:
- Concept Store
- Architetti:
- Jo Nagasaka / Schemata Architects + ondesign Partners
- Team di progetto:
- Ayami Uchima, Ou Ueno, Yasutaka Onishi
- Superficie:
- 123 mq
