“In alternativa a un’immagine femminile carina e stereotipata, volevo rappresentare una donna forte che sfida il futuro”. L’architetto Satoshi Takijiri ha utilizzato i toni del verde e del grigio cemento – complementari del rosa – per creare un insolito bagno delle ragazze al liceo St. Catherine di Kyoto.
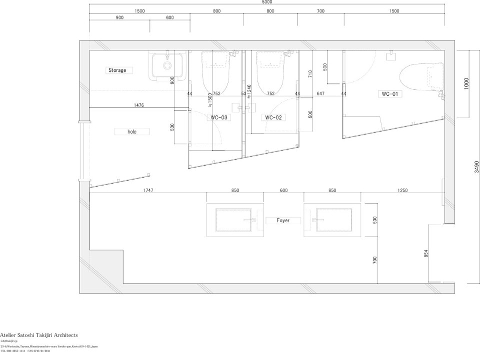
Contraddistinto da forme geometriche e grafica, il progetto di ristrutturazione dei bagni si ferma poco prima del soffitto, con piastrelle che ricoprono una fascia di parete alta 2,3 metri. Lo spazio sopra è lasciato incompiuto, rivelando la struttura originale e l’impianto idraulico. Due lavandini centrali color verde menta definiscono l’ingresso del bagno, visivamente collegato al corridoio comune. Due specchi incorniciati di rosso pendono dal soffitto, conferendo ai bagni un carattere industriale inaspettato rispetto al contesto.
View gallery
Girls’ toilet at the Kyoto St. Chatherine high school
Atelier Satoshi Takijiri Architects opted for bold green and concrete gray for the design of a girls’ toilet in a Kyoto high school.
Photo Kiyoshi Nishioka
Girls’ toilet at the Kyoto St. Chatherine high school
Atelier Satoshi Takijiri Architects opted for bold green and concrete gray for the design of a girls’ toilet in a Kyoto high school.
Photo Kiyoshi Nishioka
Girls’ toilet at the Kyoto St. Chatherine high school
Atelier Satoshi Takijiri Architects opted for bold green and concrete gray for the design of a girls’ toilet in a Kyoto high school.
Photo Kiyoshi Nishioka
Girls’ toilet at the Kyoto St. Chatherine high school
Atelier Satoshi Takijiri Architects opted for bold green and concrete gray for the design of a girls’ toilet in a Kyoto high school.
Photo Kiyoshi Nishioka
Girls’ toilet at the Kyoto St. Chatherine high school
Atelier Satoshi Takijiri Architects opted for bold green and concrete gray for the design of a girls’ toilet in a Kyoto high school.
Photo Kiyoshi Nishioka
Girls’ toilet at the Kyoto St. Chatherine high school
Atelier Satoshi Takijiri Architects opted for bold green and concrete gray for the design of a girls’ toilet in a Kyoto high school.
Photo Kiyoshi Nishioka
Girls’ toilet at the Kyoto St. Chatherine high school
Atelier Satoshi Takijiri Architects opted for bold green and concrete gray for the design of a girls’ toilet in a Kyoto high school.
Photo Kiyoshi Nishioka
Girls’ toilet at the Kyoto St. Chatherine high school
Atelier Satoshi Takijiri Architects opted for bold green and concrete gray for the design of a girls’ toilet in a Kyoto high school.
Photo Kiyoshi Nishioka
Girls’ toilet at the Kyoto St. Chatherine high school
Atelier Satoshi Takijiri Architects opted for bold green and concrete gray for the design of a girls’ toilet in a Kyoto high school.
Photo Kiyoshi Nishioka
Girls’ toilet at the Kyoto St. Chatherine high school
Atelier Satoshi Takijiri Architects opted for bold green and concrete gray for the design of a girls’ toilet in a Kyoto high school.
Photo Kiyoshi Nishioka
Girls’ toilet at the Kyoto St. Chatherine high school
Atelier Satoshi Takijiri Architects opted for bold green and concrete gray for the design of a girls’ toilet in a Kyoto high school.
Photo Kiyoshi Nishioka
Girls’ toilet at the Kyoto St. Chatherine high school
Atelier Satoshi Takijiri Architects opted for bold green and concrete gray for the design of a girls’ toilet in a Kyoto high school.
Photo Kiyoshi Nishioka
Girls’ toilet at the Kyoto St. Chatherine high school
Atelier Satoshi Takijiri Architects opted for bold green and concrete gray for the design of a girls’ toilet in a Kyoto high school.
Photo Kiyoshi Nishioka
Girls’ toilet at the Kyoto St. Chatherine high school
Atelier Satoshi Takijiri Architects opted for bold green and concrete gray for the design of a girls’ toilet in a Kyoto high school.
Photo Kiyoshi Nishioka
Girls’ toilet at the Kyoto St. Chatherine high school
Atelier Satoshi Takijiri Architects opted for bold green and concrete gray for the design of a girls’ toilet in a Kyoto high school.
Photo Kiyoshi Nishioka
Girls’ toilet at the Kyoto St. Chatherine high school
Atelier Satoshi Takijiri Architects opted for bold green and concrete gray for the design of a girls’ toilet in a Kyoto high school.
Photo Kiyoshi Nishioka
Girls’ toilet at the Kyoto St. Chatherine high school
Atelier Satoshi Takijiri Architects opted for bold green and concrete gray for the design of a girls’ toilet in a Kyoto high school.
Photo Kiyoshi Nishioka
Girls’ toilet at the Kyoto St. Chatherine high school
Atelier Satoshi Takijiri Architects opted for bold green and concrete gray for the design of a girls’ toilet in a Kyoto high school.
Photo Kiyoshi Nishioka
Girls’ toilet at the Kyoto St. Chatherine high school
Atelier Satoshi Takijiri Architects opted for bold green and concrete gray for the design of a girls’ toilet in a Kyoto high school.
Photo Kiyoshi Nishioka
Girls’ toilet at the Kyoto St. Chatherine high school
Atelier Satoshi Takijiri Architects opted for bold green and concrete gray for the design of a girls’ toilet in a Kyoto high school.
Photo Kiyoshi Nishioka
Girls’ toilet at the Kyoto St. Chatherine high school
Atelier Satoshi Takijiri Architects opted for bold green and concrete gray for the design of a girls’ toilet in a Kyoto high school.
Photo Kiyoshi Nishioka
Girls’ toilet at the Kyoto St. Chatherine high school
Atelier Satoshi Takijiri Architects opted for bold green and concrete gray for the design of a girls’ toilet in a Kyoto high school.
Photo Kiyoshi Nishioka
Girls’ toilet at the Kyoto St. Chatherine high school
Atelier Satoshi Takijiri Architects opted for bold green and concrete gray for the design of a girls’ toilet in a Kyoto high school.
Photo Kiyoshi Nishioka
Girls’ toilet at the Kyoto St. Chatherine high school
Atelier Satoshi Takijiri Architects opted for bold green and concrete gray for the design of a girls’ toilet in a Kyoto high school.
Photo Kiyoshi Nishioka
<443A5C8F768D4895A88C8F5C8B9E937390B9834A835E838A83698D8293998A778D5A5C90B9834A835E838A83698EC08E7B90DD8C76907D204D6F64656C20283129>
Atelier Satoshi Takijiri Architects opted for bold green and concrete gray for the design of a girls’ toilet in a Kyoto high school.
Photo Kiyoshi Nishioka
Girls’ toilet at the Kyoto St. Chatherine high school
Atelier Satoshi Takijiri Architects opted for bold green and concrete gray for the design of a girls’ toilet in a Kyoto high school.
Photo Kiyoshi Nishioka
Girls’ toilet at the Kyoto St. Chatherine high school
Atelier Satoshi Takijiri Architects opted for bold green and concrete gray for the design of a girls’ toilet in a Kyoto high school.
Photo Kiyoshi Nishioka
Girls’ toilet at the Kyoto St. Chatherine high school
Atelier Satoshi Takijiri Architects opted for bold green and concrete gray for the design of a girls’ toilet in a Kyoto high school.
Photo Kiyoshi Nishioka
Girls’ toilet at the Kyoto St. Chatherine high school
Atelier Satoshi Takijiri Architects opted for bold green and concrete gray for the design of a girls’ toilet in a Kyoto high school.
Photo Kiyoshi Nishioka
Girls’ toilet at the Kyoto St. Chatherine high school
Atelier Satoshi Takijiri Architects opted for bold green and concrete gray for the design of a girls’ toilet in a Kyoto high school.
Photo Kiyoshi Nishioka
Girls’ toilet at the Kyoto St. Chatherine high school
Atelier Satoshi Takijiri Architects opted for bold green and concrete gray for the design of a girls’ toilet in a Kyoto high school.
Photo Kiyoshi Nishioka
Girls’ toilet at the Kyoto St. Chatherine high school
Atelier Satoshi Takijiri Architects opted for bold green and concrete gray for the design of a girls’ toilet in a Kyoto high school.
Photo Kiyoshi Nishioka
Girls’ toilet at the Kyoto St. Chatherine high school
Atelier Satoshi Takijiri Architects opted for bold green and concrete gray for the design of a girls’ toilet in a Kyoto high school.
Photo Kiyoshi Nishioka
Girls’ toilet at the Kyoto St. Chatherine high school
Atelier Satoshi Takijiri Architects opted for bold green and concrete gray for the design of a girls’ toilet in a Kyoto high school.
Photo Kiyoshi Nishioka
Girls’ toilet at the Kyoto St. Chatherine high school
Atelier Satoshi Takijiri Architects opted for bold green and concrete gray for the design of a girls’ toilet in a Kyoto high school.
Photo Kiyoshi Nishioka
Girls’ toilet at the Kyoto St. Chatherine high school
Atelier Satoshi Takijiri Architects opted for bold green and concrete gray for the design of a girls’ toilet in a Kyoto high school.
Photo Kiyoshi Nishioka
Girls’ toilet at the Kyoto St. Chatherine high school
Atelier Satoshi Takijiri Architects opted for bold green and concrete gray for the design of a girls’ toilet in a Kyoto high school.
Photo Kiyoshi Nishioka
Girls’ toilet at the Kyoto St. Chatherine high school
Atelier Satoshi Takijiri Architects opted for bold green and concrete gray for the design of a girls’ toilet in a Kyoto high school.
Photo Kiyoshi Nishioka
Girls’ toilet at the Kyoto St. Chatherine high school
Atelier Satoshi Takijiri Architects opted for bold green and concrete gray for the design of a girls’ toilet in a Kyoto high school.
Photo Kiyoshi Nishioka
Girls’ toilet at the Kyoto St. Chatherine high school
Atelier Satoshi Takijiri Architects opted for bold green and concrete gray for the design of a girls’ toilet in a Kyoto high school.
Photo Kiyoshi Nishioka
Girls’ toilet at the Kyoto St. Chatherine high school
Atelier Satoshi Takijiri Architects opted for bold green and concrete gray for the design of a girls’ toilet in a Kyoto high school.
Photo Kiyoshi Nishioka
Girls’ toilet at the Kyoto St. Chatherine high school
Atelier Satoshi Takijiri Architects opted for bold green and concrete gray for the design of a girls’ toilet in a Kyoto high school.
Photo Kiyoshi Nishioka
Girls’ toilet at the Kyoto St. Chatherine high school
Atelier Satoshi Takijiri Architects opted for bold green and concrete gray for the design of a girls’ toilet in a Kyoto high school.
Photo Kiyoshi Nishioka
Girls’ toilet at the Kyoto St. Chatherine high school
Atelier Satoshi Takijiri Architects opted for bold green and concrete gray for the design of a girls’ toilet in a Kyoto high school.
Photo Kiyoshi Nishioka
Girls’ toilet at the Kyoto St. Chatherine high school
Atelier Satoshi Takijiri Architects opted for bold green and concrete gray for the design of a girls’ toilet in a Kyoto high school.
Photo Kiyoshi Nishioka
Girls’ toilet at the Kyoto St. Chatherine high school
Atelier Satoshi Takijiri Architects opted for bold green and concrete gray for the design of a girls’ toilet in a Kyoto high school.
Photo Kiyoshi Nishioka
Girls’ toilet at the Kyoto St. Chatherine high school
Atelier Satoshi Takijiri Architects opted for bold green and concrete gray for the design of a girls’ toilet in a Kyoto high school.
Photo Kiyoshi Nishioka
Girls’ toilet at the Kyoto St. Chatherine high school
Atelier Satoshi Takijiri Architects opted for bold green and concrete gray for the design of a girls’ toilet in a Kyoto high school.
Photo Kiyoshi Nishioka
Girls’ toilet at the Kyoto St. Chatherine high school
Atelier Satoshi Takijiri Architects opted for bold green and concrete gray for the design of a girls’ toilet in a Kyoto high school.
Photo Kiyoshi Nishioka
<443A5C8F768D4895A88C8F5C8B9E937390B9834A835E838A83698D8293998A778D5A5C90B9834A835E838A83698EC08E7B90DD8C76907D204D6F64656C20283129>
Atelier Satoshi Takijiri Architects opted for bold green and concrete gray for the design of a girls’ toilet in a Kyoto high school.
Photo Kiyoshi Nishioka
- Progetto:
- Bagno di un liceo a Kyoto
- Tipologia:
- ristrutturazione di un bagno
- Architetto:
- Satoshi Takijiri, Atelier Satoshi Takijiri Architects
- Committente:
- Kyoto St. Catherine High School
- Luogo:
- Kyoto, Giappone
- Completamento:
- 2018
