Risultati
Nessun elemento trovato
Ricerca troppo corta
Yusuke Seki: Kolmio+LIM
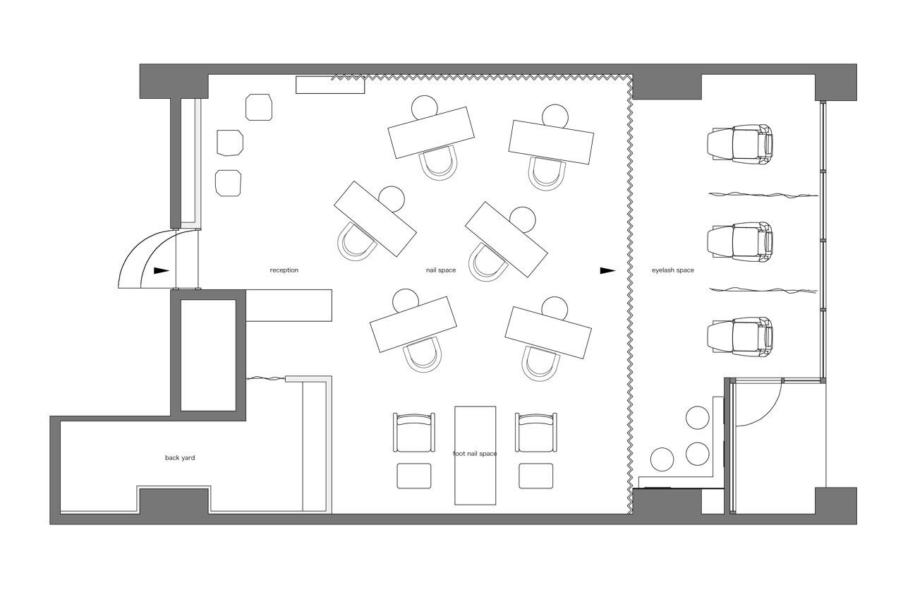
Il designer giapponese Yusuke Seki ha progettato il centro estetico Kolmio+LIM di Osaka utilizzando i toni naturali del legno e il bianco per suggerire l’idea dei diversi colori della pelle, mentre lo spazio rappresenta in maniera simbolica la colorazione delle unghie.
Kolmio+LIM, disegnato da Yusuke Seki, è un centro estetico per la cura delle unghie a Osaka.
Le cromie, giocate sui toni del legno naturale e del bianco, intendono rappresentare i colori della pelle, mentre lo spazio è una rappresentazione simbolica della pittura delle unghie.
Yusuke Seki, Kolmio+LIM, Osaka, Giappone
La parete a zigzag e la rifrazione della luce che ne consegue imitano i riflessi cangianti dello smalto, mentre le gradazioni cromatiche appaiono come i diversi livelli di intensità dovuti all’applicazione di strati successivi di smalto.
Yusuke Seki ha scelto le tonalità di bianco che più si avvicinano al colore dell’unghia, cercando di esprimere il proverbio giapponese “uomo diverso, mente diversa”: così come ogni persona è caratterizzata da un proprio tono della pelle, donare a ciascuno una propria bellezza personale, richiede una certa attenzione.
Yusuke Seki, Kolmio+LIM, Osaka, Giappone
I toni con cui sono dipinte le pareti fanno invece riferimento al contesto, visibile dalla vetrata, in modo da creare un ambiente dominato da un’estetica unitaria.
Le forme dinamiche fanno riferimento al kolmio (“triangolo”) e ai suoi valori simbolici, oltre che alla sua funzionalità nel suddividere lo spazio.
Galleria
SHARE
PIN IT
SHARE
PIN IT
SHARE
PIN IT
SHARE
PIN IT
SHARE
PIN IT
SHARE
PIN IT
SHARE
PIN IT
SHARE
PIN IT
SHARE
PIN IT
SHARE
PIN IT
Yusuke Seki, Kolmio+LIM, Osaka, Giappone
SHARE
PIN IT
Yusuke Seki, Kolmio+LIM, Osaka, Giappone
SHARE
PIN IT
Yusuke Seki, Kolmio+LIM, Osaka, Giappone
SHARE
PIN IT
Yusuke Seki, Kolmio+LIM, Osaka, Giappone
SHARE
PIN IT
Yusuke Seki, Kolmio+LIM, Osaka, Giappone
SHARE
PIN IT
Yusuke Seki, Kolmio+LIM, Osaka, Giappone
SHARE
PIN IT
Yusuke Seki, Kolmio+LIM, Osaka, Giappone
SHARE
PIN IT
Yusuke Seki, Kolmio+LIM, Osaka, Giappone
SHARE
PIN IT
Yusuke Seki, Kolmio+LIM, Osaka, Giappone
SHARE
PIN IT
平面図.mcd
Yusuke Seki, Kolmio+LIM, Osaka, Giappone. Pianta
SHARE
PIN IT
Kolmio+LIM, Osaka, Giappone Design: Yusuke Seki Completamento: settembre 2013