Situata nel quartiere Leslieville a Toronto, House Caroline di Reign Architects mostra un possibile approccio alla trasformazione di una casa di metà '800.
L’unità si inserisce all’interno di una schiera caratterizzata da accentuata profondità e scarsa larghezza. Al piano terra le aperture sono pensate per massimizzare l’ingresso della luce naturale. L’apertura sul fronte principale, in corrispondenza della quale trova spazio un confortevole tavolo da pranzo con panca integrata al vano della finestra, è protetta dallo spazio della strada attraverso una schermatura interna. Sul lato opposto, una generosa vetrata estende invece il soggiorno verso cortile posteriore.
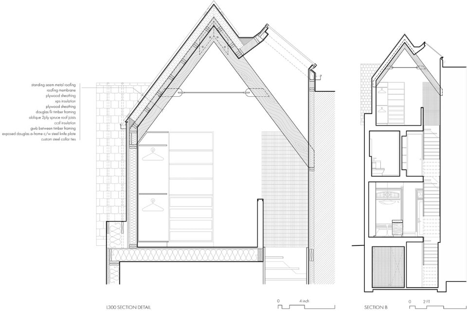
Al piano superiore, in corrispondenza delle camere dei figli, le finestre si fanno più strette per culminare all’ultimo livello con aperture triangolari o circolari, in un gioco di forme che sfrutta la geometria del tetto e denuncia, col suo livello di astrazione, la contemporaneità del progetto. L’ultimo livello ospita anche un generoso bagno, pensato in continuità alla cabina armadio. In copertura è ricavato un ampio lucernario che porta luce alla cabina armadio e al livello inferiore del vano scala.
Gli interni sfruttano lo spessore dei muri per alloggiare nicchie e vani a giorno e lasciano libere, per quanto possibile, le superfici al centro delle stanze. In particolare, il piano terra è proposto come una zona continua che si snoda da zona pranzo a cucina a soggiorno per terminare nel cortile dominato dall’imponente acero, riferimento costante ai diversi livelli. Sono i particolari di posa qui, dalle finiture alle soluzioni di dettaglio, ad arricchire la qualità di una casa che, come raccontano gli architetti, è "un santuario per una famiglia in crescita".
