Uetikon è il primo edificio europeo progettato dallo studio messicano Ppaa Pérez Palacios Arquitectos. La nuova residenza, situata a Uetikon Am See, un paese di qualche migliaio di abitanti a breve distanza da Zurigo, si affaccia da nord sul lago, sviluppandosi attorno ad una vista mozzafiato sul paesaggio collinare elvetico.
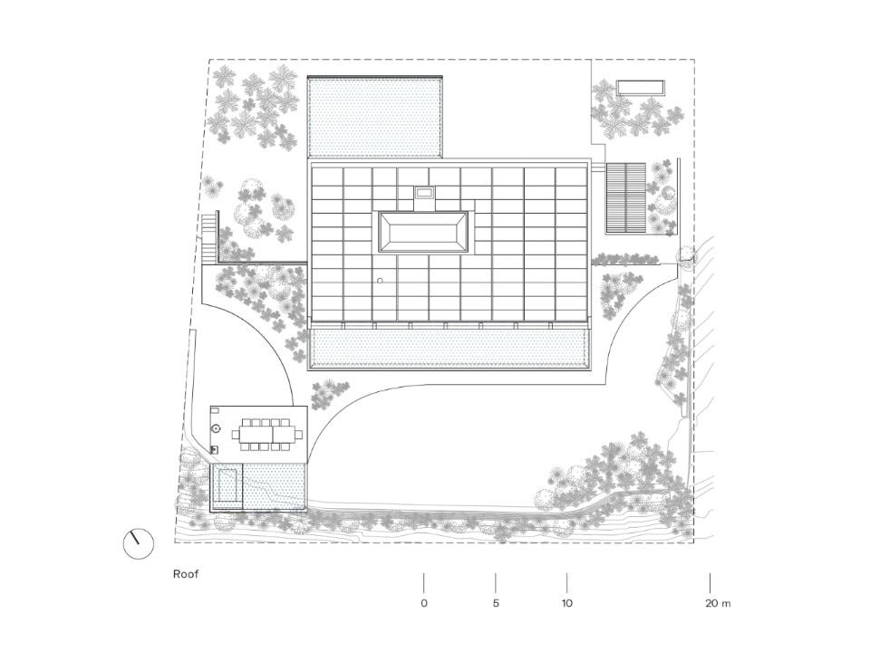
L'edificio si compone di due volumi sovrapposti e distinti: un podio di colore grigio, coperto da uno specchio d'acqua a sfioro, che riflette il paesaggio circostante e accentua la sensazione di armonia ininterrotta con l'ambiente, e una parte superiore che emerge con grandi vetrate, e sottili pilastri a sorreggere la copertura monofalda orientata verso monte.
«Dal suo ingresso in alto, si intraprende un viaggio verso le aree aperte al pubblico, dove ogni spazio si apre su una maestosa vista di uno specchio d'acqua che assicura la continuità con il paesaggio principale, il lago», scrivono gli architetti.
Dal punto di vista spaziale, l'edificio si integra perfettamente con la morfologia decliva del pendio collinare. L'accesso avviene dalla strada situata a monte, permettendo così di sfruttare al massimo la vista sul lago di Zurigo.
Al piano superiore si trovano il garage per due auto, l'ingresso principale e la zona giorno. Quest'ultima è un ambiente ampio e luminoso, composto da un soggiorno con camino a legna, una zona pranzo e una cucina a vista. A completare il piano superiore c'è una camera matrimoniale con una spaziosa cabina armadio, che garantisce un elevato livello di comfort e praticità.
Il piano inferiore ospita invece due camere da letto singole e una serie di spazi accessori, tra cui un home theater, una piccola palestra, una lavanderia e un'area di transizione tra interno ed esterno che funge anche da deposito per le biciclette.
L'architettura dei due volumi si distingue non solo per il trattamento della facciata, ma anche per il carattere degli interni e la connessione con il paesaggio. Il piano superiore è un vero e proprio “balcone” sul lago di Zurigo, inondato di luce naturale che penetra attraverso le ampie finestre e i lucernari del tetto. Questo spazio aperto e arioso è in netto contrasto con l'atmosfera quasi “ipogea” del piano inferiore, che offre un ambiente protetto e sicuro. Qui, la luminosità si attenua progressivamente verso gli spazi più interni, creando un'atmosfera più intima e riservata.
Gli interni sono caratterizzati da un design minimalista: pareti bianche, pavimenti in parquet chiaro e soffitti realizzati con sottili lastre di cemento, entro cui è elegantemente celato il sistema di illuminazione e di ventilazione meccanica. Le porte, tutte a scomparsa, contribuiscono a mantenere questo tono minimal, eliminando tutto ciò che è superfluo e focalizzando l'attenzione sulla qualità degli spazi e sulla vista panoramica.
È da qui, da questa natura di casa su un podio che, pur nella sua modernità, rispetta e celebra la bellezza del paesaggio, parte della vita quotidiana dei suoi abitanti, che l'esperimento Uetikon muove, cercando non solo di arricchire il panorama architettonico svizzero, ma anche di offrire un esempio di come il design contemporaneo possa valorizzare il contesto naturale, integrandosi da una posizione di dialogo.
