L’Olanda vanta una ricca storia di edilizia sociale. A partire dalle prime esperienze della scuola di Amsterdam fino alle recenti macrostrutture urbane, Leitmotiv nelle diverse esperienze sono una visione di città fortemente imperniata sullo spazio pubblico come legante della struttura insediativa e una “poetica” del funzionalismo che associa, all’offerta di strutture economicamente accessibili e di rapida realizzazione, un’attenzione particolare al benessere abitativo in nome di un “diritto alla bellezza” oltre che alla casa.
Nel corso dei decenni il profilo socioeconomico dell’Olanda, come di molti altri paesi, è profondamente mutato: da un lato il mercato selvaggio e i fenomeni di gentrification hanno esacerbato la cesura sociale nell’accesso ad abitazioni di qualità, tracciando una mappa delle città sempre più punteggiata da zone di segregazione in base al censo e all’etnia; dall’altro una società sempre più liquida registra la frammentazione della famiglia tradizionale e l’incremento esponenziale dei nuclei monopersonali.
In questo quadro, l’edilizia sociale talvolta svolge un ruolo strategico negli equilibri urbani, importando nelle aree di trasformazione quell’energia multipolare legata alla mixité sociale e a quei valori che storicamente la contraddistinguono, tra cui l’identità di luogo e di comunità.
É il caso del recente quartiere Overhoeks sulla riva nord del fiume IJ ad Amsterdam Noord, nell’ambito del masterplan per la riqualificazione dell’ex area industriale Shell.
Nel piano urbanistico ad alta densità a firma di Geurst & Schulze per circa 2.200 case, rientra il complesso De Jakoba di Studioninedots, uno dei due fabbricati deputati ad accogliere edilizia sociale nel comparto.
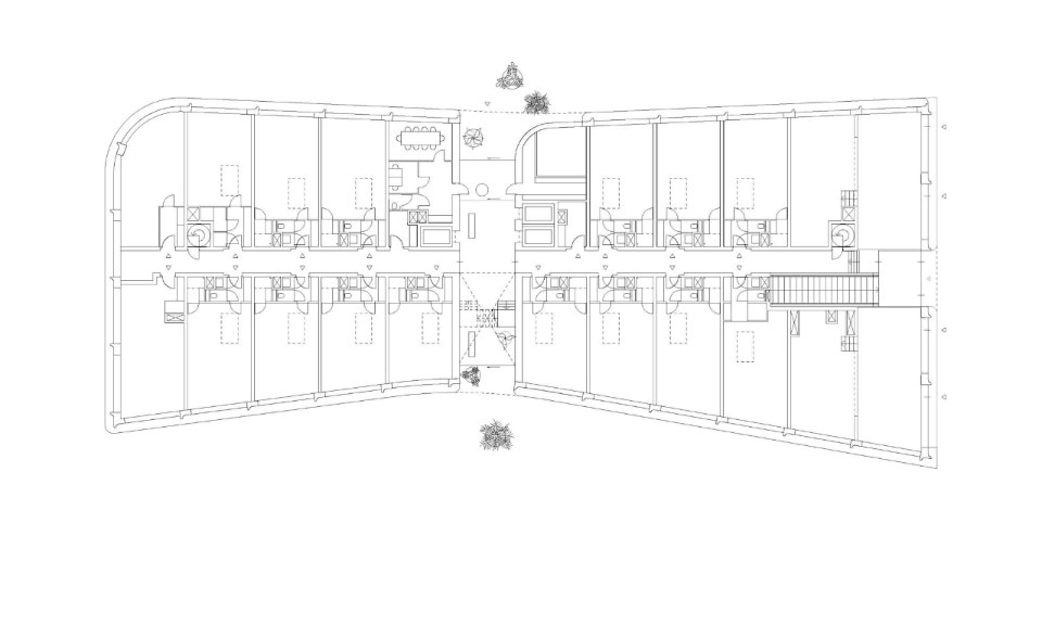
L’edificio si distribuisce su sette piani e comprende 135 monolocali in affitto, oltre a spazi commerciali, servizi e un giardino comune al piano terra.
In coerenza con le prescrizioni del masterplan che imponevano arretramenti delle costruzioni per ridurne l’impatto sulla strada, la corposa volumetria è stemperata dall’andamento convesso in pianta e dalla curvatura in alzato che determina un progressivo assottigliamento dei piani e layout variabili ad ogni livello.
L’inflessione verso l’interno raggiunge la massima concavità nella zona centrale dove si situa l’ingresso vetrato, che funge da trait d’union tra il giardino condominiale e la strada.
La tecnologia costruttiva in elementi di cemento prefabbricato ha consentito di ridurre costi e tempi di realizzazione e connotato formalmente l’edificio, grazie anche alla tonalità verde pistacchio che pennella i fronti e che dialoga con infissi e balaustre dai toni caldi.
La trama di fasce orizzontali e pilastri verticali leggermente curvilinei crea un vivace gioco di luci ed ombre, accentuando il dinamismo della massa plastica, animata quasi da una forza endogena che la stringe e la piega.
- Gruppo di progetto:
- Albert Herder, Vincent van der Klei, Arie van der Neut, Metin van Zijl, Stijn de Jongh, Erik Hoogendam, Mai Bogø, Ania Bozek
- Collaboratori:
- Dura Vermeer, Buro Sant en Co., Strackee, Byldis, Nieman Raadgevende Ingenieurs, VDNDP
- Cliente:
- Ymere
