Ai margini di Baza, una piccola città dell'Andalusia, il giovane studio franco-spagnolo VIDA architecture in collaborazione con Matriz Arquitectura, viene chiamato a progettare una casa per una famiglia di tre componenti. La casa è situata tra l’ultima zona edificabile della città e i campi coltivati, in un contesto eterogeneo e poco accogliente fatto di grandi oggetti urbani, lotti vuoti e case unifamiliari.
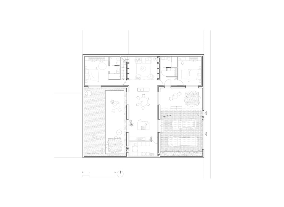
La posizione e la conformazione del lotto suggerisce la possibilità di una casa a patio, come vuole l’architettura tradizionale di questa parte di Spagna, che ricerca l’intimità e l’introspezione domestica garantita dal recinto senza però rinunciare a un contatto diretto con il mondo esterno.
La pianta a T accoglie nel suo corpo principale la zona giorno e divide lo spazio esterno in due: un cortile d’accesso che funge anche da garage e un patio dove si riunisce la famiglia. Una doppia altezza nella zona giorno lascia penetrare la luce zenitale dal primo piano ed estende questo spazio comune anche al piano superiore dove viene collocata una stanza polivalente: zona studio o lavoro, sala giochi o stanza degli ospiti.
Su strada, una grande apertura quadrata rompe il carattere introverso della casa, offrendo, nella sua profondità, un angolo da cui osservare la città e la pianura, e conferendo alla facciata una personalità domestica e giocosa.
Con pareti portanti di mattoni, pavimenti alleggeriti, intonaci naturali e un unico modulo per la carpenteria esterna la casa vine costruita con un budget molto ristretto.
La sua forma garantisce massima flessibilità interna per soddisfare nuove esigenze quali l’arrivo di altri bambini, l’affitto di una stanza, la costruzione di un pergolato o la possibilità di lavorare in casa.
Elementi strutturali aggiuntivi vengono quindi previsti per soddisfare nuovi carichi: travi nella zona esterna del piano terra per ospitare un pergolato, pareti portanti e travi nel cortile del livello superiore per sostenere un piano aggiuntivo.
- Progetto:
- Casa RR
- Luogo:
- Baza, Spagna
- Architetto:
- VIDA architecture + Matriz Arquitectura
- Programma:
- casa unifamiliare
- Superfiie:
- 178 mq
- Progetto strutture:
- MATRIZ arquitectura, Miguel A. Lucena Valverde
- Direttore lavori:
- Jesus Serrano
- Completamento:
- 2019
