Il Théâtre du Maillon si trova nel quartiere Wacken di Strasburgo, a quindici minuti dal centro storico e accanto al Parlamento Europeo. Questa zona periferica sta cambiando in fretta, con nuovi edifici residenziali in fase di costruzione tutt’attorno. Il teatro da fuori non sembra affatto un teatro. È un cubo nero all’apparenza anonimo, quando visto da lontano. Potrebbe essere un edificio per uffici o una qualunque fabbrica. Nessuna segnaletica ne indica la reale funzione.
Si raggiunge salendo ampie gradinate in cemento – il complesso è leggermente sopraelevato per rispondere ai potenziali allagamenti dell’area – e non esiste un ingresso centrale. Per capire quale sia l’entrata, cammino lentamente attorno alle pareti perimetrali vetrate e aspetto che un sensore di movimento mi faccia accedere. Dopo qualche metro, due pareti vetrate si aprono ed entro subito, senza avere la certezza di aver intercettato l’ingresso giusto. Mi ritrovo in una lobby ampia, di 14 metri di altezza, industrial ma calda e luminosa, completamente rifinita in cemento chiaro lucidato e in netto contrasto con il tono scuro della facciata.
Già in prossimità del volume ci si rende conto delle numerose sorprese che si nascondono nell’edificio e si intravede un monumentale cortile interno, con aperture al soffitto che fanno entrare la pioggia di fine novembre, come un impluvium contemporaneo. Ad aspettarmi all’interno c’è l’architetto italiano Umberto Napolitano, co-fondatore del pluripremiato studio LAN Architecture, pronto ad accompagnarmi in ogni meandro di questa nuova creatura, che vedrà il completamento definitivo tra un mese e che è già stata inaugurata ufficialmente settimana scorsa con un tripudio di spettacoli per tutte le età, con tanto di taglio del nastro di Emmanuel Macron, che “in un attimo ha colto tutte le caratteristiche del progetto e ha dato l’impressione di essere il massimo esperto del quartiere e del teatro: un vero oratore”, racconta sorridendo Napolitano.
Maillon in francese significa “connessione”, e la nuova sede progettata da LAN è esattamente questo: connessione tra le sale, tra interno ed esterno, tra il teatro e la città, tra lo spettatore e lo spettacolo. “Ci siamo chiesti come spingere al massimo uno spazio da definire”, spiega Napolitano. “Come lavorare sull’idea del limite, come un qualcosa che sia più spesso. Il limite tra interno ed esterno, tra una sala e l’altra, tra gli attori e il pubblico. Ogni volta questo limite prende delle configurazioni, questa frontiera diventa molto porosa in alcuni casi ed è molto netta in altri. L’idea di dare materia a questa frontiera, qualsiasi fosse lo spazio, ci ha spinto in varie direzioni.”
Quando abbiamo vinto il concorso abbiamo deciso di non fare un teatro, ma una fabbrica del teatro
Théâtre Maillon nasce nel ’78, dopo il diffondersi del movie theatre, quando le politiche francesi usavano il teatro per animare e portare cultura nelle periferie. Nel ’99 è stato trasferito in un hangar della Fiera Internazionale di Wacken, e da lì è diventato leggenda. Un luogo la cui natura industriale ha originato una programmazione talmente avanguardistica da attirare i grandi protagonisti del teatro contemporaneo, a partire da Romeo Castellucci, regista della Societas Raffaello Sanzio, incitandoli a cambiare la configurazione del teatro ogni volta. Per via della fiera, poi, ogni anno a giugno si era costretti a liberare gli spazi. Ora il Maillon fa parte di una rete europea di programmazioni teatrali tra le più sperimentali, sotto la guida della direttrice franco-tedesca Barbara Engelhardt. Il vecchio teatro in fiera è stato demolito per rinascere in quest’ultimo firmato da LAN.
“Quando abbiamo vinto il concorso abbiamo deciso di non fare un teatro, ma una fabbrica del teatro”, racconta Napolitano. “A partire da questa idea abbiamo realizzato una facciata che è uguale ovunque, non ha più ingressi principali, diventa generico. Dando tantissima luce e lo stesso spazio a tutto il teatro, con molto volume. Abbiamo lavorato sul vuoto, nella speranza che proprio il vuoto fosse lo spazio potenziale.” Prima ancora di concentrarsi sul contesto urbano, gli architetti si sono cimentati nel teatro contemporaneo, analizzandone le forme più diffuse oggi, dagli spettacoli ambulanti in cui il pubblico segue gli attori, a quelli di danza, fino alle mostre collaterali di artisti che lavorano tra cinema, teatro e arte.
“Gli spazi dovevano rispondere ai parametri classici in cui le sale sono totalmente frontali, bifrontali, trifrontali, quadrifrontali, tutte flessibili al massimo di quello che si può fare oggi, e allo stesso tempo dovevano tutti poter accogliere le rappresentazioni.” In sostanza, ogni area del teatro, dalla lobby al patio semi coperto, è attrezzata per ospitare uno o più spettacoli e può interconnettersi all’altra dando vita a infinite configurazioni, grazie a vetrate apribili ed enormi pannelli fonoassorbenti a scomparsa, aprendosi potenzialmente alla città attorno.
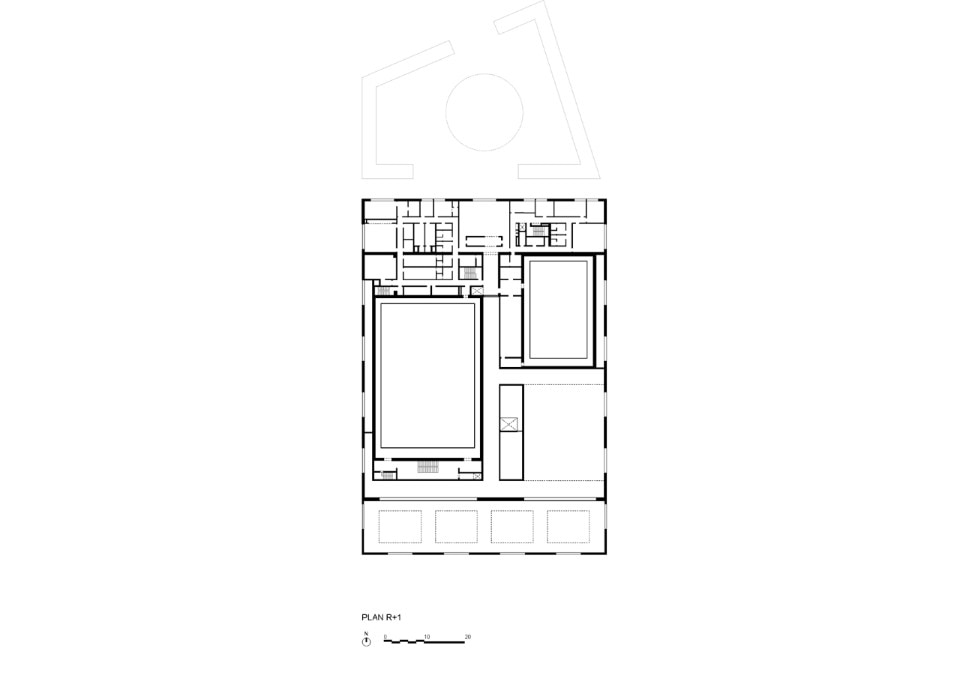
“Volevamo uscire dallo schema del teatro all’italiana con lobby, auditorium e backstage”. Il teatro, in sintesi, comprende al piano terra due auditorium (il più grande può ospitare fino a 714 posti), una lobby con bar e biglietteria a doppia facciata per riconfigurarsi all’occorrenza e due cortili di cui uno interno. Al primo piano sono collocati gli uffici amministrativi, altre sale per eventi o lezioni di yoga e danza, i camerini e lo “spazio degli artisti” con cucina open space e una sala multifunzionale. I percorsi al piano terra sono indicati da una segnaletica a monitor che può essere sempre riprogrammata in base alla configurazione degli spettacoli giorno per giorno. Le sedute in sala, realizzate da un’azienda specializzata italiana, rispondono ai massimi requisiti di acustica, sono telescopiche e mobili. Le finiture e i pavimenti – realizzati da aziende francesi e tedesche – sono studiati per restituire la miglior performance fonoassorbente possibile.
Gli arredi della lobby, invece, rientrano in un iter parallelo di autocostruzione, dove gli architetti hanno fornito al teatro dei disegni tecnici da scaricare e autoprodurre. LAN ha disegnato una grande varietà di elementi, dalle poltrone alle sedie a dondolo e i tavoli, mentre la realizzazione (semplice taglio laser del legno e montaggio) è lasciata al teatro, che decide quali e quanti arredi realizzare all’occorrenza. Il processo rientra nel progetto MAKE A, un vero manifesto per la democratizzazione dei mobili che sorpassa il mondo della distribuzione e trasforma il cliente in designer.
L’unico limite che sembra emergere da quest’opera sta nelle inesauribili possibilità spaziali, che l’immaginazione dei registi e della direzione dovrà poter sfruttare al meglio ora che finalmente si trovano tra le mani la sintesi di quella grande macchina scenica congegnata in quarant’anni di storia, che legittima e sfida le possibilità del teatro oggi. Prova ne è stata la rappresentazione de La Pasionaria, spettacolo di danza contemporanea della compagnia spagnola La Veronal, diretta da Marcos Morau, che ha narrato un mondo distopico con scenografia frontale e ballerini-robot che controllano le nascite dei bambini in un ambiente retrofuturista scandito da beat techno, colori pastello e luci al neon.
- Progetto:
- Maillon Théâtre de Strasbourg – Scène Européenne
- Tipologia:
- teatro
- Architetti:
- LAN Architecture
- Luogo:
- Strasburgo, Francia
- Team:
- Umberto Napolitano, Benoit Jallon – Francisco Martinez, Dorothée Riou, Margaux Desombre, Marcello Orlandini, Marina Bedina
- Scenografia:
- Michel Fayet, Ludovic Hallard, Patrice Buniazet
- Ingegneria:
- Terrel Group
- Strutture:
- Batiserf
- Area:
- 7.017 mq (1.044 mq auditorium grande, 484 mq auditorium piccolo, 491 mq hall)
- Costo:
- € 20M
- Completamento:
- 2019
