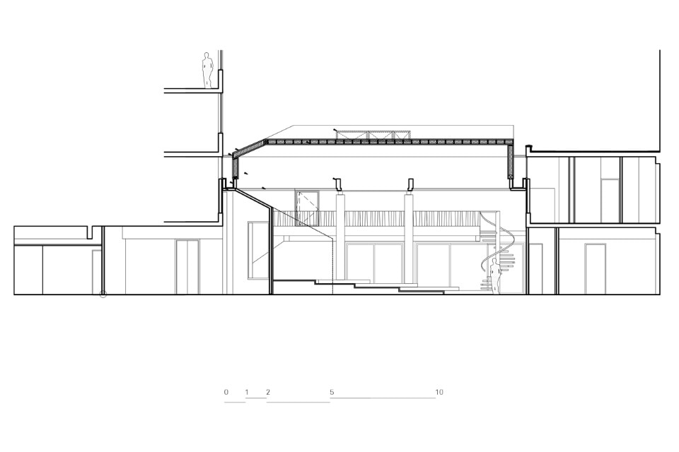
L’edificio che ospita i servizi della Facoltà di Architettura di Bruxelles ha sempre dato l’impressione di essere cupo e introverso. L’idea principale del progetto di Lhoas & Lhoas Architectes è di liberare gli ampi spazi interni e riconnetterli allo spazio aperto. Per rispettare l’edificio esistente e per rientrare nel budget limitato, la struttura di calcestruzzo è lasciata a vista. In questo modo si rafforza il carattere organico delle nuove partizioni che si adattano agli spazi originali.
Galleria
adj5_Plan RdC_A3 (2)
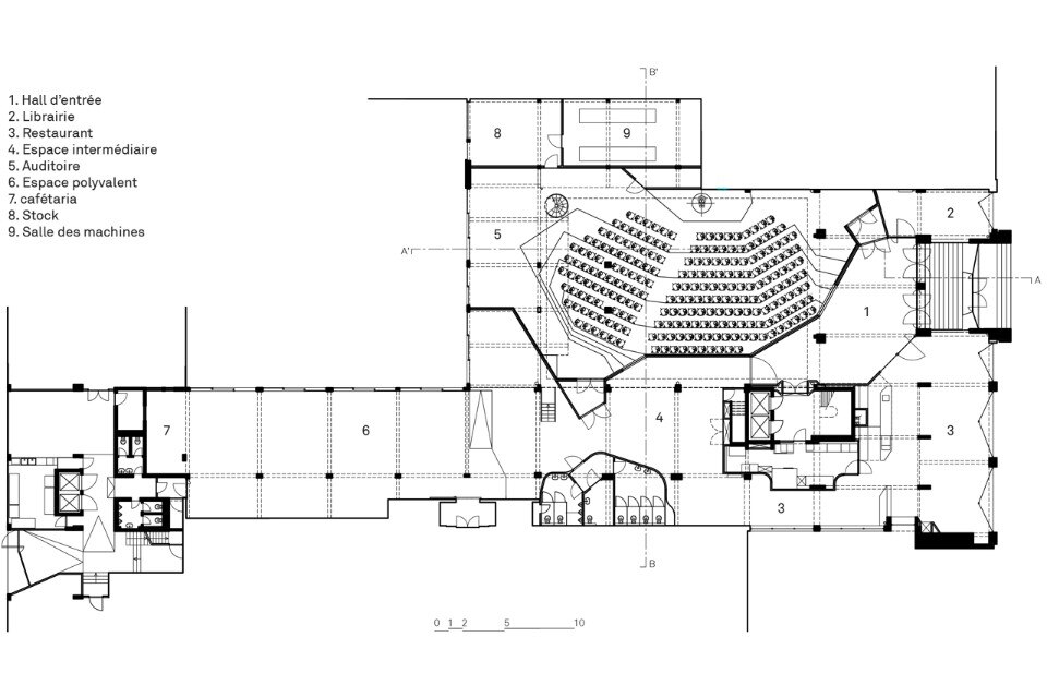
Le qualità nascoste del luogo sono rivelate da dispositivi semplici. Le partizioni esaltano il carattere labirintico dell’edificio e rivelano l’ortogonalità delle travi e dei pilastri. I nuovi materiali dialogano con quelli vecchi, creando una forma omogenea per la natura eterogenea del sito. Una nuova copertura prefabbricata sfrutta e rivela la robusta struttura di cemento che compre lo spazio centrale trasformato in auditorium. Grandi finestre prismatiche si affacciano alla piazza e permettono di connettere lo spazio d’ingresso a quelli esterni.
- Progetto:
- Ristorante L’Architecte e libreria PUB
- Luogo:
- Bruxelles
- Tipologia:
- uso misto
- Architetto:
- Lhoas & Lohas Architectes
- Superficie:
- 282 mq
- Completamento:
- 2017
