Galleria
L’architettura del Lab City genera una scuola urbana aperta, con un disordine creativo tenuto insieme dalla stessa struttura. L’asse principale dell’edificio taglia diagonalmente tutta la città-laboratorio. Il progetto crea un’esperienza unica tra l’edificio e il suo interno, creando una comoda strada pubblica che collega il campus a una stazione della metropolitana di futura costruzione. Intorno a questa spina urbana, il programma si divide in diversi edifici di varie dimensioni e tipologie, organizzati attorno a una griglia urbana che genera percorsi secondari.
Galleria
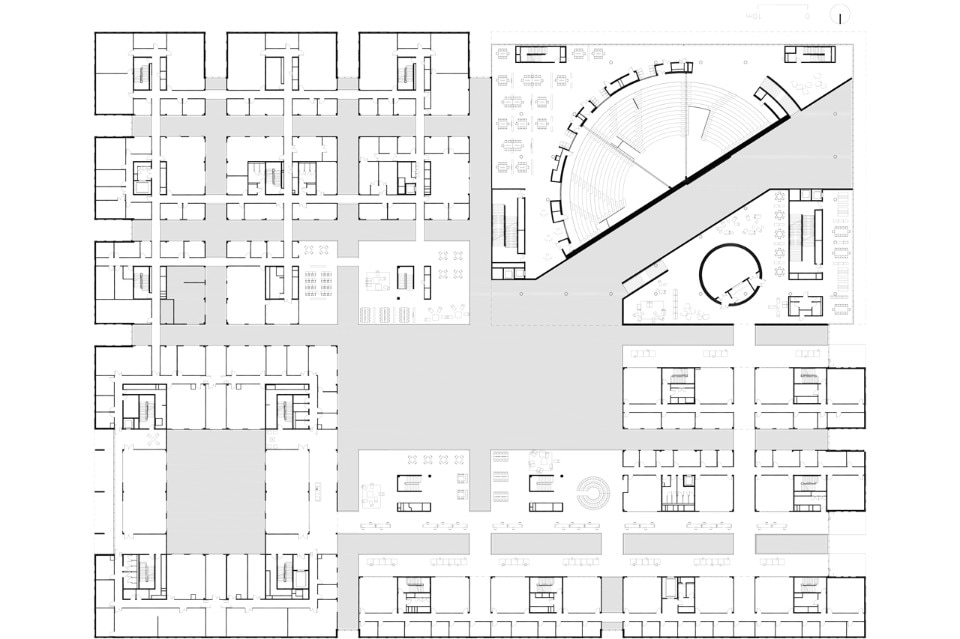
Q:\FR-Centrale\09_EXE\11_FILES OUT\00_OMA\00_PR\170816_Plans and Section for PR\FloorPlan-L0 Model (1)
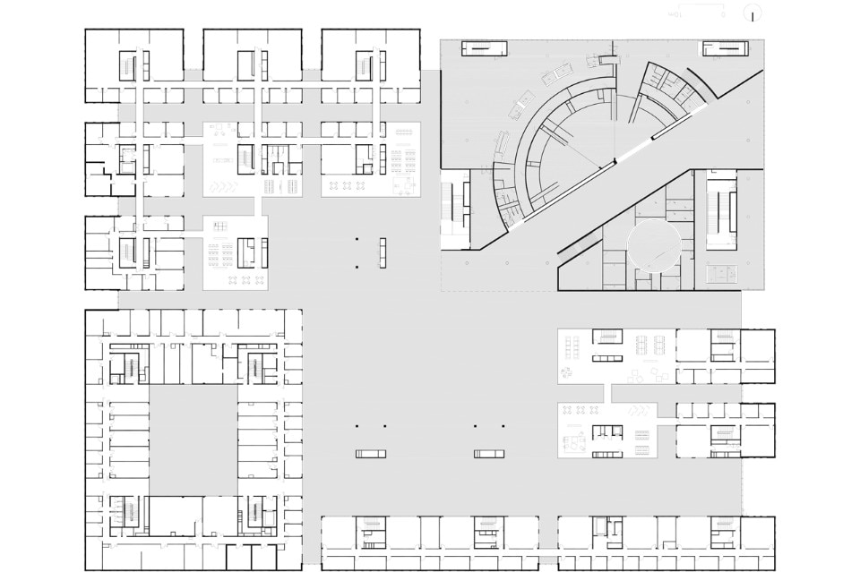
OMA, Lab City CentraleSupélec, piano terra
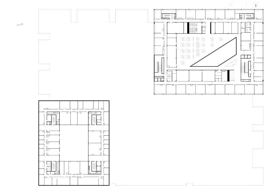
Q:\FR-Centrale\09_EXE\11_FILES OUT\00_OMA\00_PR\170816_Plans and Section for PR\FloorPlan-L1 Model (1)
OMA, Lab City CentraleSupélec, primo piano
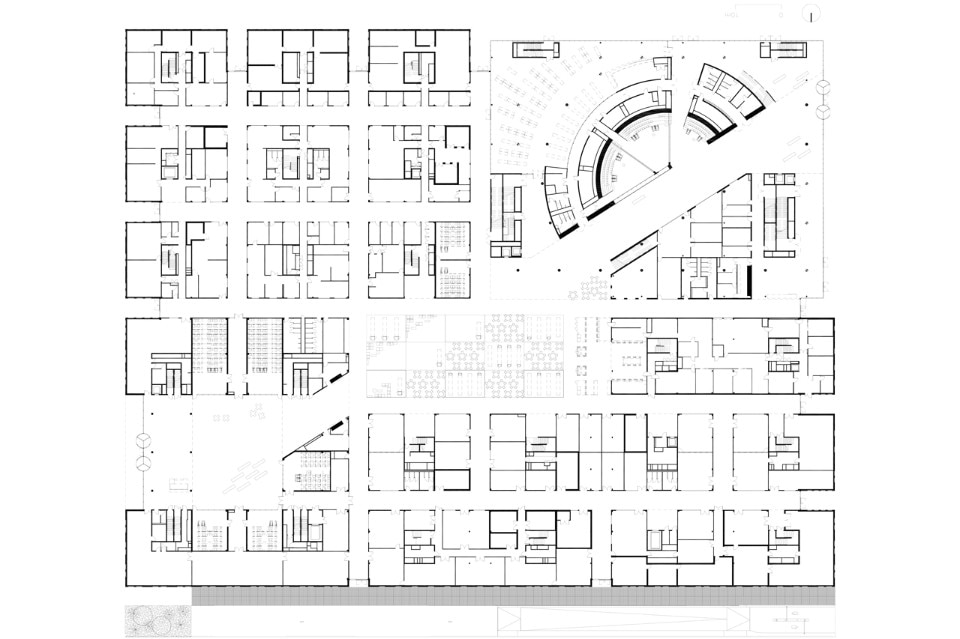
Q:\FR-Centrale\09_EXE\11_FILES OUT\00_OMA\00_PR\170816_Plans and Section for PR\FloorPlan-L2 Model (1)
OMA, Lab City CentraleSupélec, secondo piano
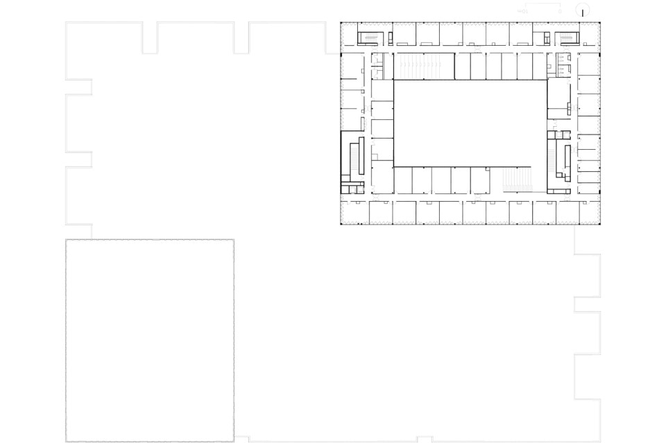
Q:\FR-Centrale\09_EXE\11_FILES OUT\00_OMA\00_PR\170816_Plans and Section for PR\FloorPlan-L3 Model (1)
OMA, Lab City CentraleSupélec, terzo piano
Lab City CentraleSupélec, Saclay, Francia
Tipologia: campus universitario
Architetto: OMA
Soci responsabili: Ellen van Loon, Rem Koolhaas
Fase di sperimentazione
Capoprogetto: Clément Blanchet, Edouard Pervès
Team di progetto: Fred Awty, Felicity Cardoso, Maria Aller Rey, Gabriella Bandeira, Eugenio Cardoso, Alban Denic, Cristina Martin de Juan, Pedro Pitarch Alonso, Ana Rubin, Saul Smeding, Alicia Casals, Phil Handley, Helena Hiriart, Li Huang, Didzis Jaunzems, Sang Woo Kim, Ida Stople, Pierre-Jean Le Maitre
Fase di progetto
Capoprogetto: Clément Blanchet, Edouard Perveès, Saskia Simon
Team di progetto: Pedro Pitarch Alonso, Anton Anikeev, Tolis Apostolidis, Gabriella Bandeira, Lourdes Carretero Botran, Jonathan Bourhis, Matthieu Boustany, Paloma Bule, Eugenio Cardoso, Alban Denic, Gilles Guyot, Christopher Hayman, Aleksandar Joksimovic, Cristina Martin de Juan, Min Hong Khor, Sangwoo Kim, Lina Kwon, Pierre-Jean Le Maitre, Elida Mosquera Martinez, Ioana Mititelu, Edmondo Occhipinti, John Paul Pacelli, Marcus Parviainen, Maria Aller Rey, Ana Rubin, Kristin Schaefer, Jad Semaan, Timur Shabaev, Saul Smeding, Lingxiao Zhang
Fase di costruzione
Capoprogetto: Clément Blanchet, Edouard Pervès
Team di progetto: Mauro Altana, Joanna Fregnac, Glaucia Hanne, Cristina Martin de Juan, Iris Maass, Pierre-Jean Le Maitre, Vitor Oliveira, Saskia Simon
Paesaggio: D’Ici Là
Ingegneria: Bollinge r+ Grohmann, ALTO Ingénierie, Royal Haskoning DHV Consultants: Brian Cody, APEX, DAL, DUCKS, Cuisine et Concept, Polygraphik
Superficie: 48.700 mq
Completamento: 2017
