Galleria
Gli interventi si concentrano sullo sviluppo di infrastrutture, spazi e relazioni dinamiche tra le funzioni del fabbricato. La sala multifunzionale è l’intervento che ha il maggiore impatto e introduce uno spazio di grandi dimensioni, ricavato dalle classi della vecchia scuola e che connette varie attività tra loro.
Galleria
Nr.Virum_Situationsplan_1000
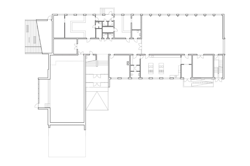
Nr.Virum_Plan0_400
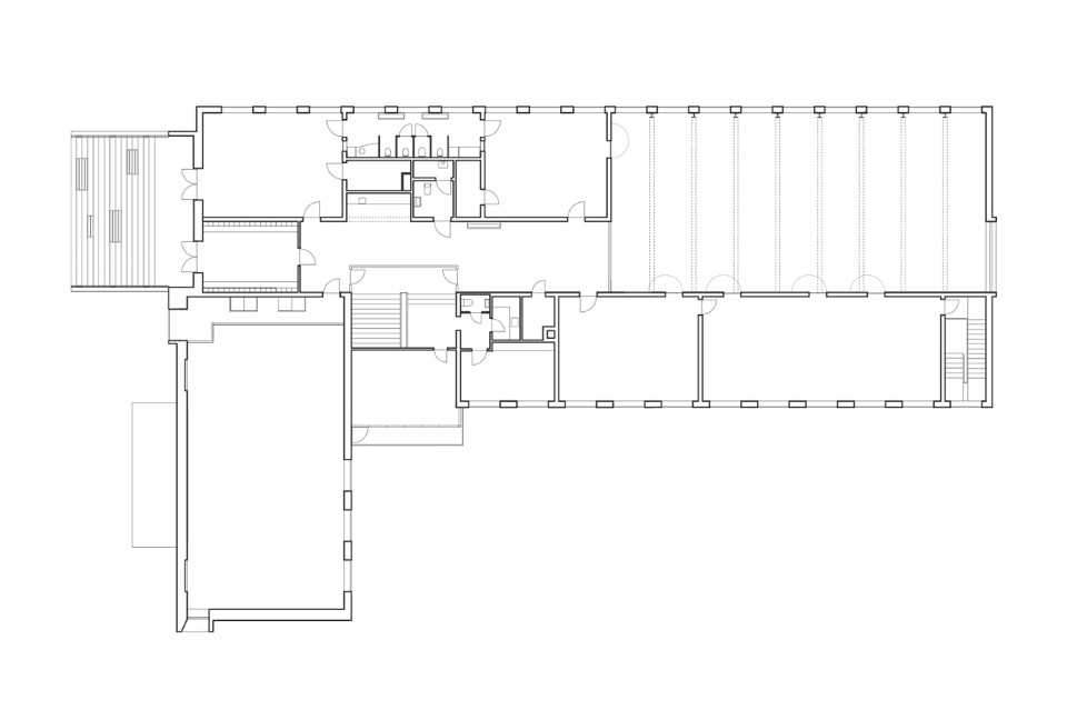
Nr.Virum_Plan1_400
Nr.Virum_SnitDD_200
M:\2013\1308-Nr. Vium\07_TEGN\CAD\A1.30_rev a A1.32 (1)
L’uso del colore evidenzia il design degli spazi, ispira creatività e dinamicità e aiuta nell’orientamento all’interno del Villaggio. Il progetto dei colori è stato realizzato in stretta collaborazione con gli utenti, gli investitori e i progettisti. Le tonalità utilizzate si ispirano a quelle della scuola esistente, che negli anni Sessanta era stata contro le carte da parati colorate. Verde, blu e giallo sono i colori utilizzati per le pareti. I soffitti sono ricoperti di pannelli acustici neri o lasciati al naturale, i pavimenti di linoleum degli spazi di distribuzione sono rossi, mentre nei diversi spazi hanno il proprio colore.
Villaggio nella Scuola, Videbæk, Danimarca
Tipologia: edificio pubblico
Architetti: Erik Brandt Dam architects e Cornelius+Vöge
Colori: Malene Bach
Ingegneria: Ingeniørgruppen Vestjylland
Completamento: 2017
