Galleria
Fig.9 Studio Razavi Architecture, Casa di montagna, Manigod, Francia, 2017. Fiti Simone Bossi
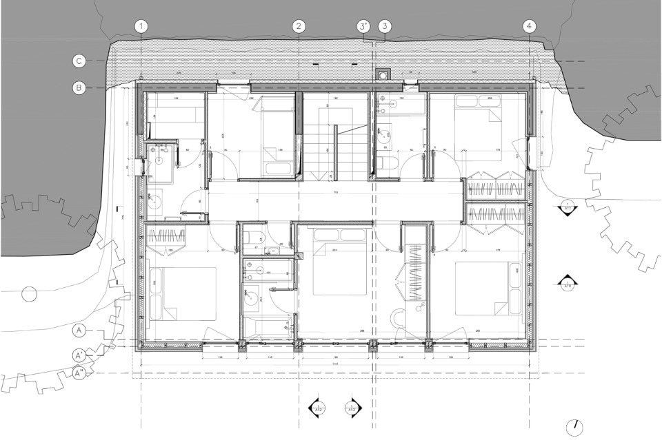
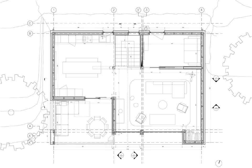
Per eludere queste limitazioni, lo studio francese ha prestato grande attenzione all’analisi degli edifici storici, per capire quali sono le necessità delle forme realizzate che modellano la cultura locale. Hanno integrato queste informazioni nella progettazione, evitando di imitare l’architettura vernacolare ed eliminando elementi inutili e obsoleti, accertandosi però che l’edificio rientrasse all’interno dei codici di conformità.
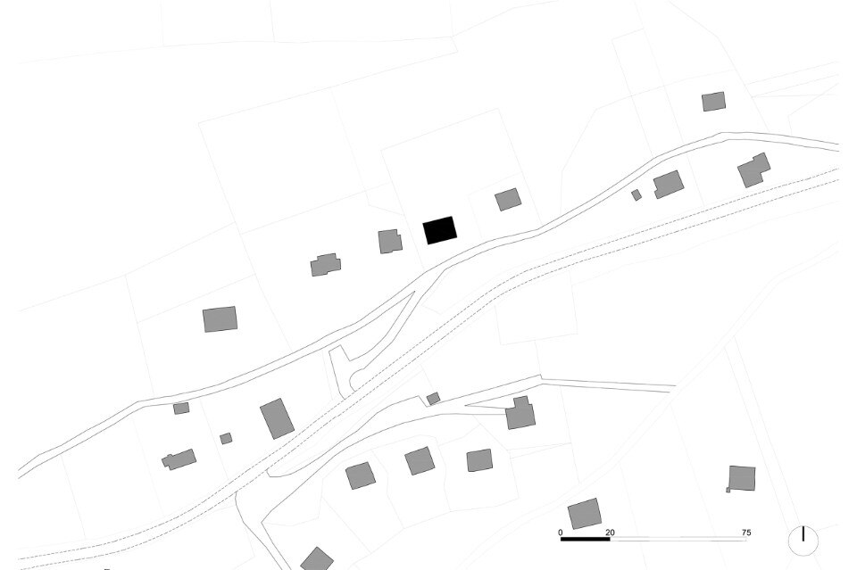
Casa di montagna, Manigod, Francia
Tipologia: casa unifamiliare
Architettura: Studio Razavi Architecture
Superficie: 200 mq
Completamento: 2017
