Galleria
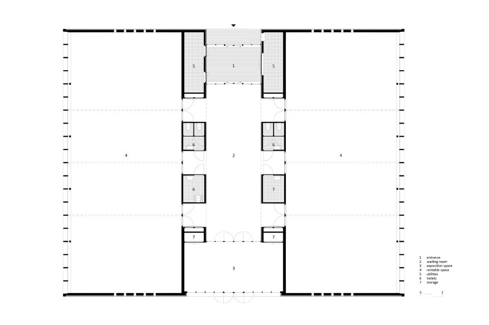
Lo spazio centrale è immaginato come una strada pubblica, da cui è possibile accedere alle varie funzioni, che hanno un ingresso indipendente. L’ambiente centrale è trasparente. È accessibile a tutti e collega l’ingresso sul versante nord con un piccolo specchio d’acqua a sud. Le vetrate e i lucernari, assieme ai pannelli di legno, generano un luogo aperto, caldo e accogliente.
Care Pavilion, Hendrik-Ido-Ambacht
Tipologia: centro medico
Architetto: AAAN
Team di progetto: Luuk Stoltenborg, Rik de Ruiter
Costruzione: Pieters Bouwtechniek
Superficie: 755 mq
Completamento: 2017
