Galleria
/Users/Mariam/Box Sync/Projects/NM2000/09 Working Model and Drawings/Plans/NM2000_plans_01092015.dwg
united4design, Niamey 2000, site plan
/Users/Mariam/Box Sync/Projects/NM2000/09 Working Model and Drawings/Plans/NM2000_plans_01092015.dwg
united4design, Niamey 2000, ground floor
/Users/Mariam/Box Sync/Projects/NM2000/09 Working Model and Drawings/Plans/NM2000_plans_01092015.dwg
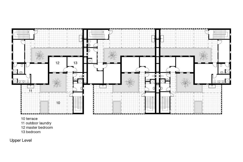
united4design, Niamey 2000, upper floor
/Users/Mariam/Box Sync/Projects/NM2000/09 Working Model and Drawings/Plans/NM2000_plans_01092015.dwg
united4design, Niamey 2000, section
Il progetto prevede spazi privati per tutti i suoi abitanti; si sforza però di andare oltre il mero bisogno di nuovi alloggi e propone un modello abitativo innovativo. Lo studio unite4design ha voluto utilizzare mattoni di terra cruda e ha studiato tecniche di raffreddamento passivo contro le temperature torride del Niger. Come sta succedendo in molte parti del pianeta, i materiali locali sono in via di abbandono per le costruzioni nei centri urbani, in favore del calcestruzzo. Il progetto reintroduce risorse locali nell’industria delle costruzioni e offre case accessibili a un’ampia fascia di una popolazione in forte crescita.
Niamey 2000, Niamey, Niger
Tipologia: edificio residenziale
Architetto: united4design – Yasaman Esmaili, Elizabeth Golden, Mariam Kamara, Philip Straeter
Strutture: Urbatec SARL
Costruzione: Entreprise Salou Alpha & Fils
Superficie: 1.700 mq
Completamento: 2017
