Galleria
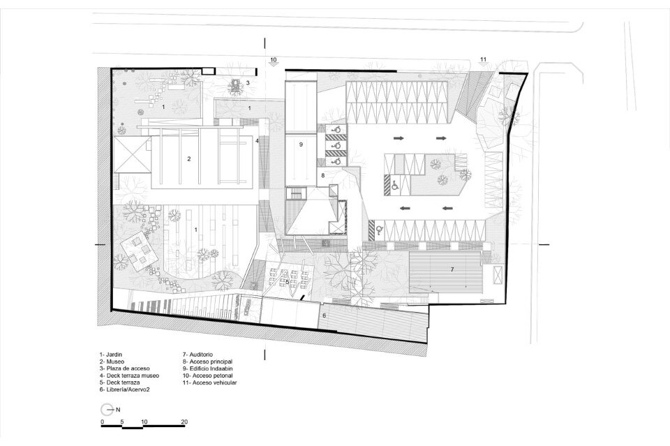
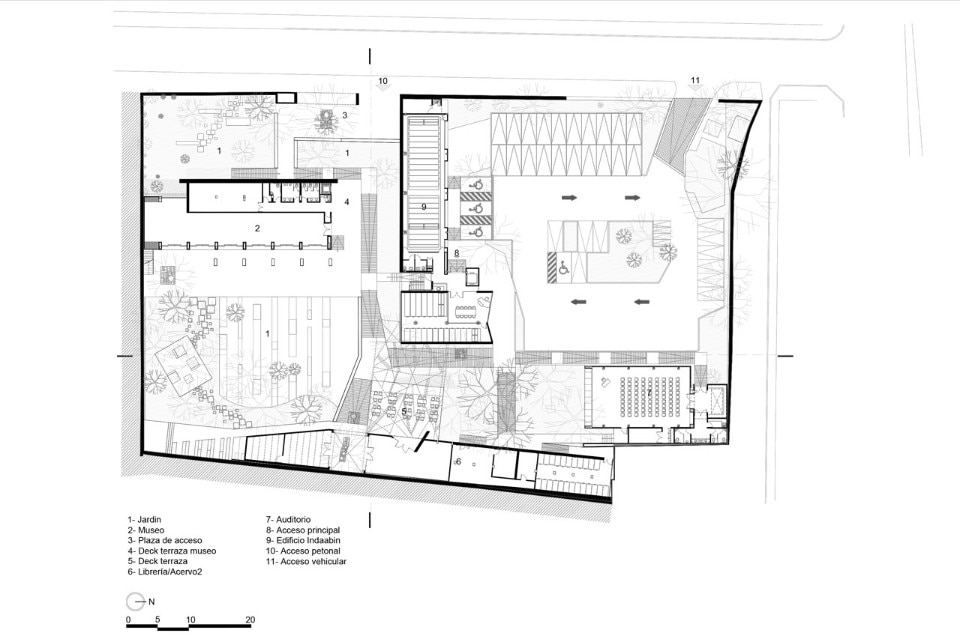
Gli architetti volevano che i visitatori potessero passeggiare attraverso una serie connessa di giardimi, piazze, vie e cortili che rivelano gradualmente l’architettura del centro culturale. La struttura è divisa in quattro volumi. Quello principale è il museo con i suoi spazi espositivi superiori e inferiori, accessibile dalla strada Salvador Novo. La costruzione ha un basamento su cui poggia un altro volume leggermente traslato, creando una galleria superiore e un portico inferiore. La scatola colorata crea uno sbalzo su due lati dell’edificio.
Centro Cultural INDAABIN, Città del Messico, Messico
Tipologia: centro culturale
Architetto: VMA – Victor Marquez
Coordinamento progetto: Angeles Miranda
Struttre: Ubando
Costruzione: Sedena
Paesaggio: Jaime Schmidt, Victor Marquez, Angeles Miranda
Superficie: 5.705 mq
Completamento: 2017
