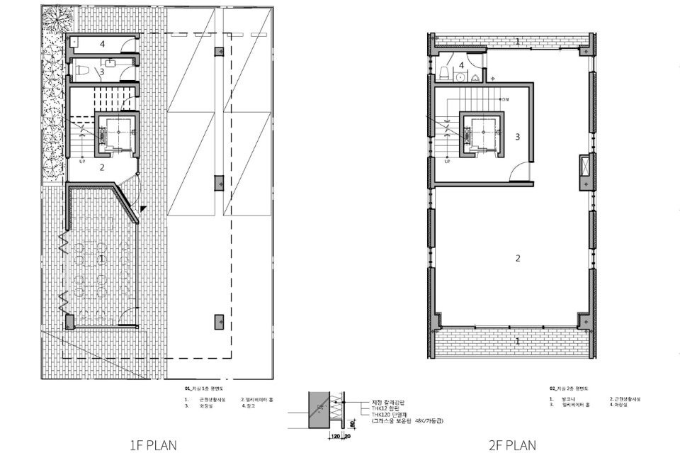
Galleria
Il calcestruzzo è il materiale principale utilizzato per l’edificio. Per migliorare le prestazioni termiche e per riparare l’edificio dagli agenti atmosferici, la struttura è stata rivestita da uno strato di acciaio che, come una coperta, copre la parte superiore dell’edificio. Nonostante il panorama non sia dei migliori, le ampie finestre dalla forma irregolare danno la possibilità di guardare il cielo e portano luce abbondante nella residenza.
Darak-Darak, Seul
Tipologia: uso misto
Architettura: The_System Lab
Team di progetto: Lee Choong Lyeol, Han Dong Su
Struttura: Kim & Lee Structural Consultant
Costruzione: Dasan Construction & Engineering
Superficie: 397 mq
Completamento: 2016
