Una delle caratteristiche fondamentali della casa è stata la sua velocità di realizzazione. Dopo un processo di progettazione di due mesi e altri cinque per garantire i permessi necessari, la casa è stata costruita in sole sei settimane, riuscendo a soddisfare le esigenze della committenza.
Galleria
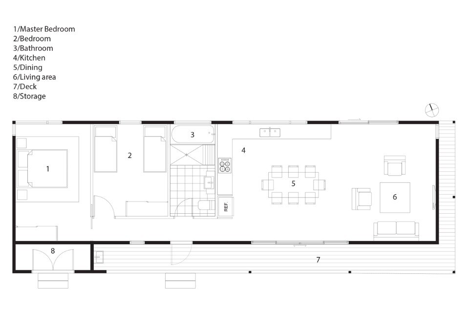
Avalon House, Sydney
Tipologia: casa unifamiliare
Architetti: ArchiBlox
Superficie: 106 mq
Completamento: 2016
