Beyond ArchiBlox’s speedy build time, prefab suited the clients desire to tread lightly on the land with the Avalon House project. After a two-month design process and five months to secure proper permits, the house was installed on-site in just six weeks, meeting the clients’ deadline.
View gallery
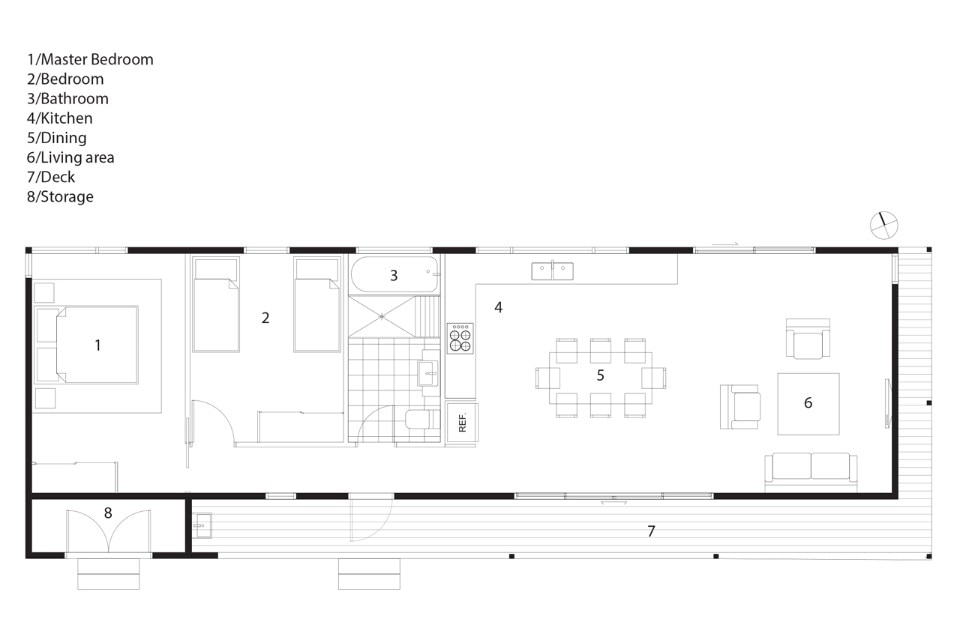
Avalon House, Sydney
Program: single-family house
Architects: ArchiBlox
Area: 106 sqm
Completion: 2016
