Galleria
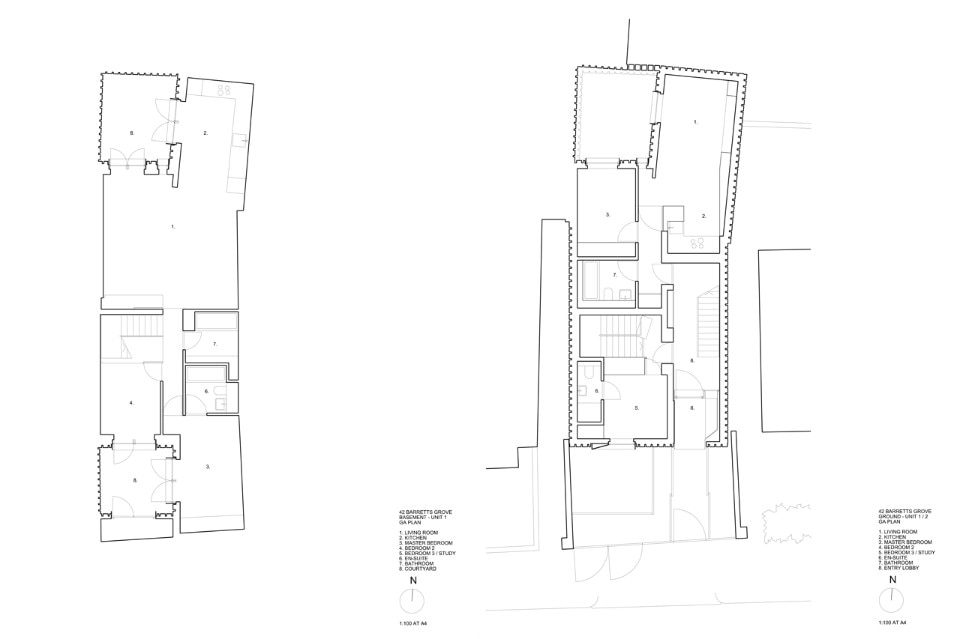
Barretts Grove, Londra
Programma: edificio residenziale
Progetto: Groupwork
Team di progetto: Dale Elliott, Sam Douek, Nerissa Yeung, Amin Taha
Strutture: Webb Yates
Costruzione: Ecore Construction
Superficie: 635 mq
Completamento: 2016
