Archivio Digitale Domus PRO in offerta

Taba

Progettato da Ibon Salaberria a San Sebastian, Taba è uno spazio che può ospitare funzioni diverse ed essere costantemente trasformato a seconda delle necessità.

 Ibon Salaberria, Taba, San Sebastian, 2016
Il nuovo Centro Internazionale di Cultura Contemporanea di Donostia – San Sebastian ha aperto nel settembre 2015 e occupa una ex fabbrica di tabacco.
Oltre agli spazi per la produzione culturale e artistica, questo nuovo ecosistema dispone di spazi per associazioni e piccole iniziative. È in questo contesto che nasce Taba, ospitato al piano terra del complesso e che si affaccia sul cortile d’ingresso del palazzo.
 Ibon Salaberria, Taba, San Sebastian, 2016
Ibon Salaberria, Taba, San Sebastian, 2016
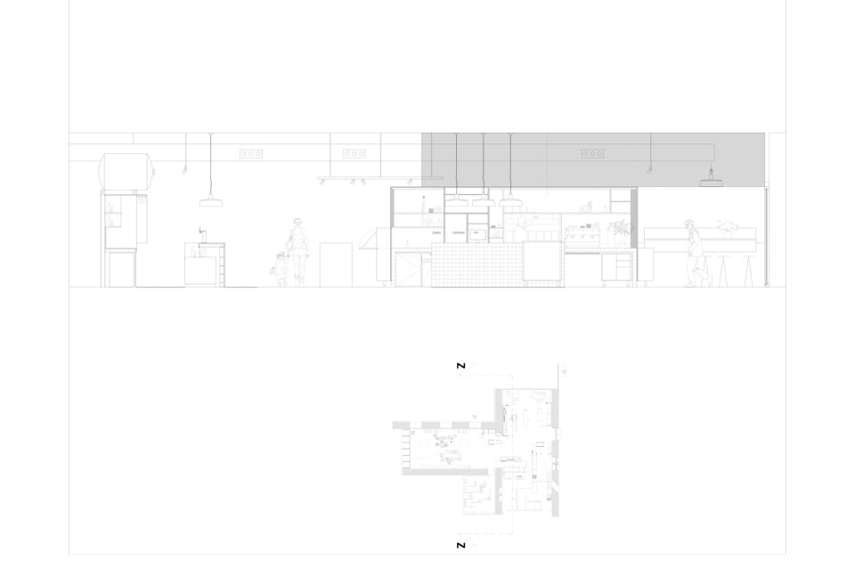
Taba è un progetto fatto di piccoli progetti all’interno di uno spazio di 430 mq. È il risultato di un lavoro di cooperazione che può ospitare funzioni diverse, a seconda delle necessità. Le diverse attività – pizzeria, caffetteria, vineria – occupano ognuna un angolo dell’open space, che funziona come estensione della piazza esterna.
 Ibon Salaberria, Taba, San Sebastian, 2016
Ibon Salaberria, Taba, San Sebastian, 2016
Il progetto permette una costante trasformazione dello spazio, che è un ambiente grezzo dove gli arredi sono distribuiti secondo necessità.
 Ibon Salaberria, Taba, San Sebastian, 2016
Ibon Salaberria, Taba, San Sebastian, 2016
L’organizzazione spaziale è fluida e si basa sulle diverse tempistiche delle bancarelle che possono essere anche usate come tavoli comuni quando sono chiuse. Gli spazi di vendita sono più illuminati delle aree comuni, che sono più intime e appartate.

Taba, San Sebastian
Tipologia: uso misto
Architetto: Ibon Salaberria – beSTe arkitektura agentzia bat
Superficie: 430 smq
Completamento: 2016

Ultimi articoli di Architettura

Altri articoli di Domus

China Germany India Mexico, Central America and Caribbean Sri Lanka Korea icon-camera close icon-comments icon-down-sm icon-download icon-facebook icon-heart icon-heart icon-next-sm icon-next icon-pinterest icon-play icon-plus icon-prev-sm icon-prev Search icon-twitter icon-views icon-instagram